New Build Villas Near Serena Golf in Los Alcazares
New Build Villas Near Serena Golf in Los Alcazares
Modern Villas in a Prime Coastal and Golf Location
This exclusive new build residential project offers modern villas located in Los Alcazares, just a short distance from the prestigious Serena Golf and only 1.2 km from the sandy beaches of the Mar Menor. Set in one of the most attractive areas of the Region of Murcia, these homes combine contemporary design, comfort and an excellent location close to the sea, golf and all daily services. Los Alcazares is a well established coastal town known for its relaxed lifestyle, long promenade, water sports and mild climate throughout the year.
Single Level Design with Private Outdoor Spaces
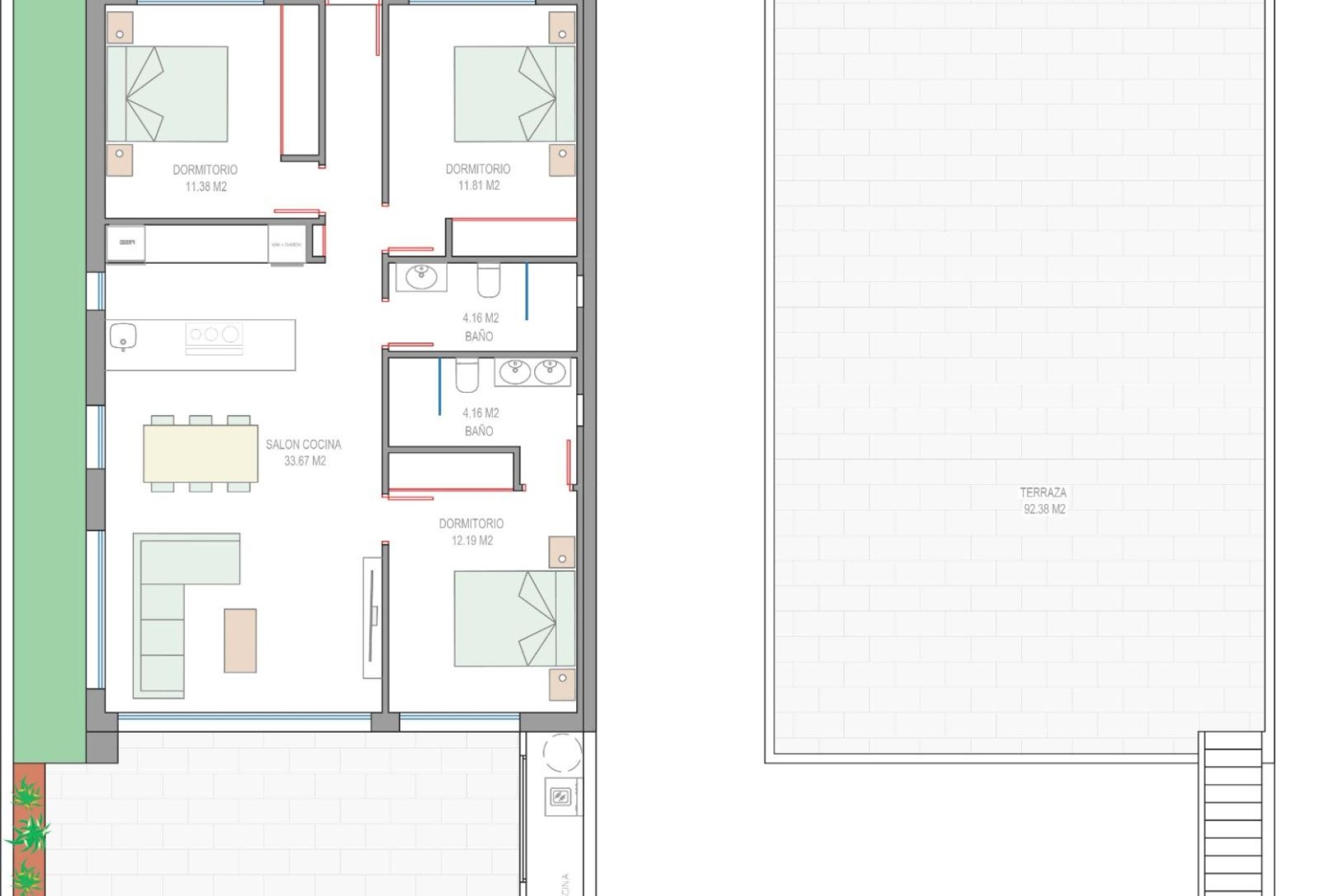
The development features stylish villas with 3 bedrooms and 2 bathrooms, available in two different built sizes of approximately 106 sqm and 130 sqm. The larger model also includes an additional guest toilet. All villas are designed on a single floor, offering practical and comfortable living. The open plan kitchen, dining and living area connects directly to a terrace and private garden with swimming pool, creating an ideal space for indoor and outdoor living. Each property also includes a private solarium and on plot parking.
High Quality Finishes and Modern Equipment
These villas are built with high quality materials and equipped with modern features. The fully fitted kitchens are available in white gloss or wood finish and include quartz worktops, stainless steel sink, induction hob with integrated extractor, oven, microwave, washing machine, integrated fridge and dishwasher. Bathrooms are fitted with furniture, mirrors, lighting and electric towel heaters. Additional features include electric blinds in bedrooms, LED lighting throughout the property and a complete ducted air conditioning system by Fujitsu.
Private Pool and Energy Efficient Comfort
Each villa includes a private swimming pool finished with blue ceramic tiles, integrated steps and white LED lighting. The pool is prepared with pre installation for a heat pump. The combination of efficient climate control, modern construction and thoughtful design ensures comfort all year round.
Excellent Connectivity and Key Distances
The villas are within walking distance of the town centre of Los Alcazares and very close to Serena Golf. The beach is approximately 1.2 km away. Cartagena city is around 20 km away, offering a rich cultural and gastronomic scene. Murcia Corvera International Airport is about 22 km away, and Alicante Airport is approximately 90 km. Several golf courses and marinas are also nearby, making this location ideal for both permanent living and holidays.
Your Ideal Home by the Sea and Golf
If you are looking for a modern new build villa near the beach and golf in Los Alcazares, contact us today for more information or to arrange a private viewing.