Villas de nueva construcción cerca de Serena Golf en Los Alcázares
Villas de nueva construcción cerca de Serena Golf en Los Alcázares
Villas modernas en una ubicación privilegiada junto a la costa y al campo de golf
Este exclusivo proyecto residencial de nueva construcción ofrece villas modernas situadas en Los Alcázares, a poca distancia del prestigioso Serena Golf y a solo 1,2 km de las playas de arena del Mar Menor. Situadas en una de las zonas más atractivas de la Región de Murcia, estas viviendas combinan un diseño contemporáneo, comodidad y una excelente ubicación cerca del mar, del golf y de todos los servicios diarios. Los Alcázares es una localidad costera bien establecida, conocida por su estilo de vida relajado, su largo paseo marítimo, los deportes acuáticos y su clima templado durante todo el año.
Diseño de una sola planta con espacios exteriores privados
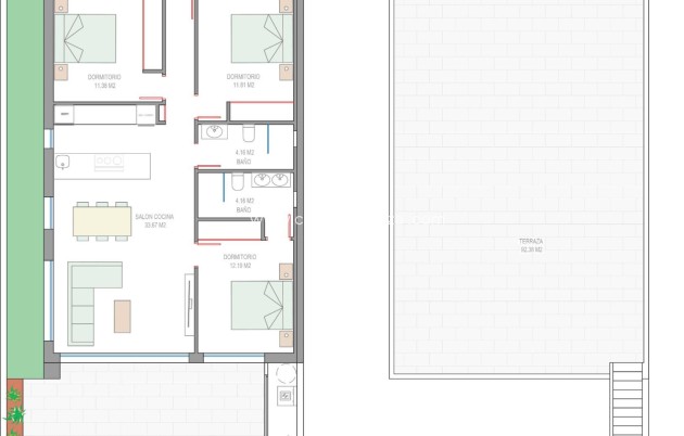
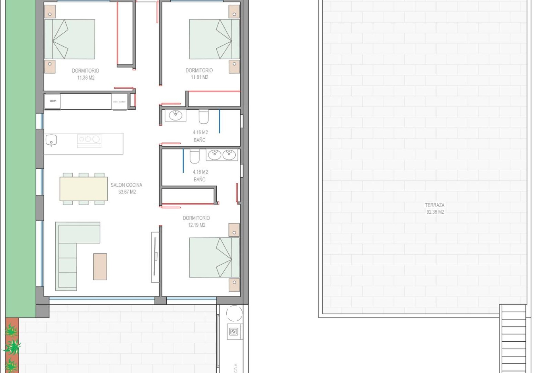
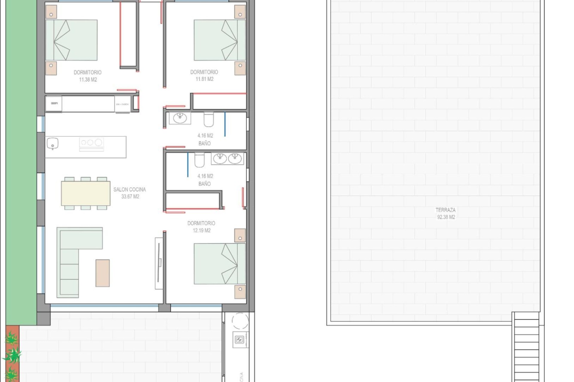
La promoción cuenta con elegantes villas de 3 dormitorios y 2 baños, disponibles en dos tamaños diferentes, de aproximadamente 106 m² y 130 m². El modelo más grande también incluye un aseo adicional para invitados. Todas las villas están diseñadas en una sola planta, lo que ofrece una vida práctica y cómoda. La cocina, el comedor y la sala de estar de planta abierta conectan directamente con una terraza y un jardín privado con piscina, creando un espacio ideal para la vida interior y exterior. Cada propiedad incluye también un solárium privado y una plaza de aparcamiento en la parcela.
Acabados de alta calidad y equipamiento moderno
Estas villas están construidas con materiales de alta calidad y equipadas con características modernas. Las cocinas, totalmente equipadas, están disponibles en acabado blanco brillante o madera e incluyen encimeras de cuarzo, fregadero de acero inoxidable, placa de inducción con extractor integrado, horno, microondas, lavadora, frigorífico integrado y lavavajillas. Los baños están equipados con muebles, espejos, iluminación y calentadores eléctricos de toallas. Otras características adicionales son las persianas eléctricas en los dormitorios, la iluminación LED en toda la propiedad y un completo sistema de aire acondicionado por conductos de Fujitsu.
Piscina privada y confort energéticamente eficiente
Cada villa incluye una piscina privada con acabado de azulejos cerámicos azules, escalones integrados e iluminación LED blanca. La piscina está preparada con preinstalación para una bomba de calor. La combinación de un control climático eficiente, una construcción moderna y un diseño bien pensado garantiza el confort durante todo el año.
Excelente conectividad y distancias clave
Las villas se encuentran a poca distancia a pie del centro de Los Alcázares y muy cerca de Serena Golf. La playa está a aproximadamente 1,2 km. La ciudad de Cartagena está a unos 20 km y ofrece una rica oferta cultural y gastronómica. El aeropuerto internacional de Murcia-Corvera está a unos 22 km y el de Alicante, a unos 90 km. También hay varios campos de golf y puertos deportivos en las cercanías, lo que hace que esta ubicación sea ideal tanto para vivir como para pasar las vacaciones.
Su hogar ideal junto al mar y al golf
Si busca una villa moderna de nueva construcción cerca de la playa y del golf en Los Alcázares, póngase en contacto con nosotros hoy mismo para obtener más información o concertar una visita privada.