Luxe moderne villa met uitzicht op zee in Benimeit, Moraira
Deze exclusieve moderne villa combineert op perfecte wijze functionaliteit, elegante architectuur en hoogwaardige afwerkingen. De woning ligt in de gewilde woonwijk Benimeit in Moraira, op een verhoogd perceel op een heuvel, en biedt een weids panoramisch uitzicht over het omringende landschap en op de Middellandse Zee. De villa ligt op minder dan 3 km van de kustlijn en biedt de perfecte balans tussen privacy, rust en gemakkelijke toegang tot het strand en lokale voorzieningen.
Het ontwerp van de woning is zorgvuldig bedacht om een naadloze verbinding te creëren tussen de binnen- en buitenruimtes, waardoor het natuurlijke licht wordt gemaximaliseerd en de prachtige omgeving onderdeel wordt van het dagelijks leven.
Ruime open woonruimte met naadloze overgang tussen binnen en buiten
De begane grond beschikt over een grote open woon- en eetruimte die direct aansluit op de terrassen en het zwembad. Kamerhoge ramen openen de hele ruimte naar buiten toe, waardoor een lichte en luchtige sfeer ontstaat en het panoramische uitzicht wordt omlijst.
De woonkamer opent zich ook naar de achterzijde van het pand, waardoor er aan beide kanten uitzicht is en de natuurlijke ventilatie wordt verbeterd. De moderne designkeuken is uitgerust met hoogwaardige Savi-kasten en eersteklas Miele-apparatuur, en biedt zowel stijl als functionaliteit voor het dagelijks leven en het ontvangen van gasten.
De villa biedt een doordachte indeling van de slaapkamers, ontworpen om het uitzicht en de privacy te maximaliseren. Twee gastenslaapkamers openen zich naar de oostzijde van het pand, terwijl de hoofdslaapkamer op de begane grond uitzicht biedt naar het westen.
De gehele begane grond heeft een sterke verbinding met de buitenruimtes, waaronder een groot overdekt terras met uitzicht op het infinity-zwembad en de omgeving, evenals een meer intieme pergola aan de achterzijde, ideaal voor ontspannende momenten.
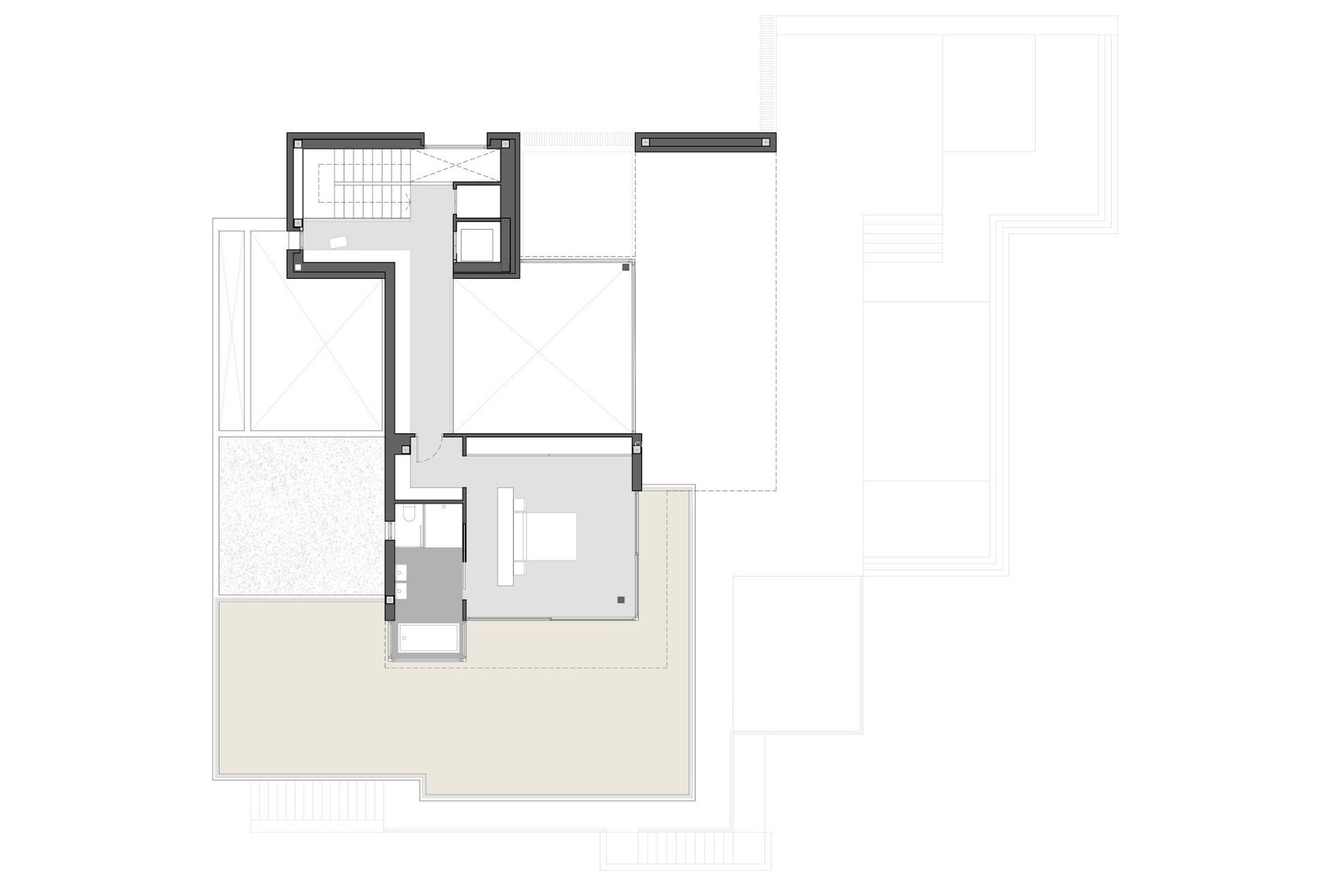
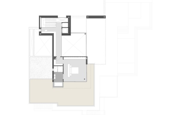
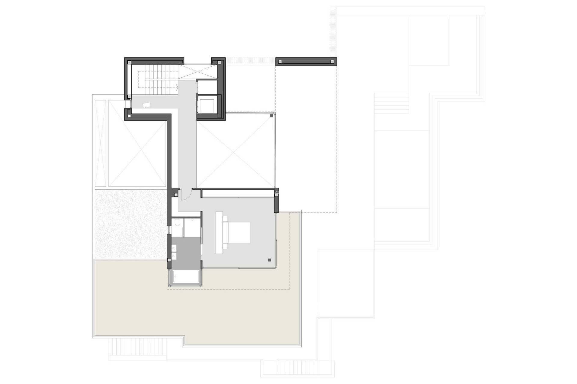
De bovenverdieping is volledig gewijd aan de indrukwekkende master suite, een spectaculaire ruimte die het pand bekroont en een panoramisch uitzicht van bijna 180 graden biedt op het omringende landschap en de Middellandse Zee.
Dit luxe pand is voorzien van hoogwaardige materialen en geavanceerde technologie door het hele huis. Kenmerken zijn onder meer Technal-ramen met argonisolatie, vloerverwarming en airconditioning met warmtepomp, en een smart home-automatiseringssysteem van Niessen FreeHome met individuele kamertemperatuurregeling via Airzone.
Extra voorzieningen zijn onder meer een personenlift die alle drie de verdiepingen met elkaar verbindt, een volledig uitgeruste wasruimte met Miele-apparatuur, een chloorvrij infinity-zwembad, 4,5 kW zonnepanelen, een alarmsysteem, een ondergrondse garage voor twee auto's en een extra parkeerplaats buiten.
Toplocatie aan de Costa Blanca
Moraira is een van de meest gewilde kustplaatsen aan de Costa Blanca, bekend om zijn charmante jachthaven, ontspannen mediterrane levensstijl en uitstekende gastronomie. De plaats biedt prachtige stranden en baaien, zoals Playa de l'Ampolla, Cala Cap Blanc en de indrukwekkende Cala del Moraig.
Belangrijke afstanden zijn onder meer het centrum van Moraira op 3 km, het strand Playa de l'Ampolla op 3 km, Club de Golf Ifach op 4 km, de haven van Marina Moraira op 3,5 km, de internationale luchthaven van Alicante op 90 km en de luchthaven van Valencia op 125 km.
Neem vandaag nog contact met ons op voor meer informatie of om een privébezichtiging van dit opmerkelijke pand in te plannen.
839