Villa contemporánea de lujo con vistas al mar en Benimeit, Moraira
Esta exclusiva villa contemporánea combina a la perfección funcionalidad, una arquitectura elegante y acabados de primera calidad. Situada en la codiciada zona residencial de Benimeit, en Moraira, la propiedad se encuentra en una parcela elevada en la ladera de una colina, lo que ofrece unas vistas panorámicas despejadas del paisaje circundante y del mar Mediterráneo. La villa se encuentra a menos de 3 km de la costa, lo que ofrece el equilibrio perfecto entre privacidad, tranquilidad y fácil acceso a la playa y a los servicios locales.
El diseño de la vivienda ha sido cuidadosamente concebido para crear una conexión fluida entre los espacios interiores y exteriores, maximizando la luz natural y permitiendo que el hermoso entorno forme parte de la vida cotidiana.
Amplio salón diáfano con una fluidez perfecta entre el interior y el exterior
La planta baja cuenta con una gran zona diáfana de salón y comedor que conecta directamente con las terrazas exteriores y la zona de la piscina. Los ventanales de suelo a techo abren todo el espacio al exterior, creando un ambiente luminoso y aireado al tiempo que enmarcan las vistas panorámicas.
El salón también se abre hacia la parte trasera de la propiedad, lo que permite disfrutar de vistas a ambos lados y mejora la ventilación natural. La moderna cocina de diseño está equipada con muebles Savi de alta calidad y electrodomésticos Miele de primera gama, ofreciendo tanto estilo como funcionalidad para la vida cotidiana y el entretenimiento.
La villa ofrece una distribución de dormitorios bien pensada, diseñada para maximizar las vistas y la privacidad. Dos dormitorios de invitados se abren hacia el lado este de la propiedad, mientras que el dormitorio principal de la planta baja disfruta de vistas hacia el oeste.
Toda la planta baja mantiene una fuerte conexión con los espacios exteriores, incluyendo una gran terraza cubierta frente a la piscina infinita y las vistas, así como una pérgola trasera más íntima, ideal para momentos de relajación.
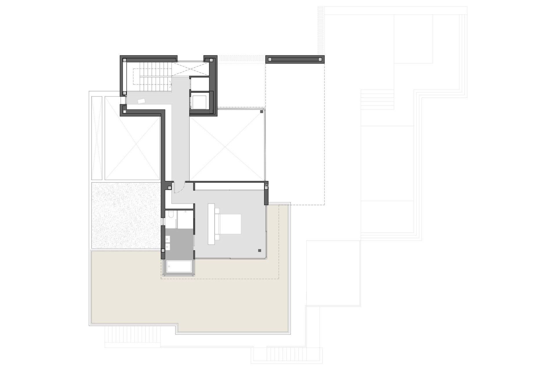
La planta superior está dedicada exclusivamente a la impresionante suite principal, un espacio espectacular que corona la propiedad y disfruta de vistas panorámicas de casi 180 grados del paisaje circundante y del mar Mediterráneo.
Esta propiedad de lujo incluye materiales de primera calidad y tecnología avanzada en toda la vivienda. Entre sus características destacan las ventanas Technal con aislamiento de argón, calefacción por suelo radiante y aire acondicionado por conductos con bomba de calor, así como un sistema de domótica inteligente de Niessen FreeHome con control individual de la temperatura de cada estancia a través de Airzone.
Otras características incluyen un ascensor de pasajeros que conecta los tres niveles, un lavadero totalmente equipado con electrodomésticos Miele, una piscina infinita sin cloro, paneles solares de 4,5 kW, sistema de alarma, garaje subterráneo para dos coches y una plaza de aparcamiento exterior adicional.
Ubicación privilegiada en la Costa Blanca
Moraira es una de las localidades costeras más codiciadas de la Costa Blanca, conocida por su encantador puerto deportivo, su relajado estilo de vida mediterráneo y su excelente gastronomía. La localidad ofrece hermosas playas y calas como la Playa de l’Ampolla, Cala Cap Blanc y la impresionante Cala del Moraig.
Las distancias principales son: centro de Moraira a 3 km, Playa de l’Ampolla a 3 km, Club de Golf Ifach a 4 km, puerto deportivo de Moraira a 3,5 km, aeropuerto internacional de Alicante a 90 km y aeropuerto de Valencia a 125 km.
Póngase en contacto con nosotros hoy mismo para obtener más información o concertar una visita privada a esta extraordinaria propiedad.
839