Nieuwbouwappartementen in Benijofar Modern wonen op een toplocatie
Nieuwbouwappartementen in Benijofar Modern wonen op een toplocatie
Exclusief nieuwbouwproject aan de Costa Blanca Zuid
Dit nieuwe woonproject bestaat uit 18 moderne appartementen aan de rand van Benijofar, op loopafstand van het centrum. Het project ligt in een van de snelst groeiende gebieden van de Costa Blanca Zuid en combineert eigentijdse architectuur, hoogwaardige materialen en een strategische locatie, ideaal voor zowel permanent wonen als investeren.
Appartementstypes voor elke levensstijl
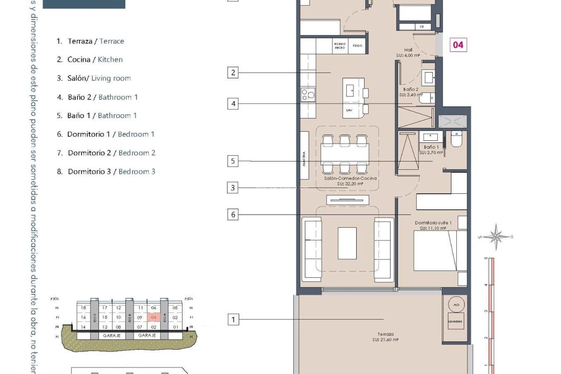
Het project biedt ruime appartementen met drie slaapkamers en twee badkamers, waarvan één ensuite. Kopers kunnen kiezen tussen woningen op de begane grond met grote terrassen en privétuinen, appartementen op de middelste verdieping met royale terrassen of penthouses met terras en privésolarium. Het solarium is voorzien van een pre-installatie voor een zomerkeuken, perfect om te genieten van het mediterrane klimaat.
Modern design en hoog comfort
Elk appartement is zorgvuldig ontworpen om lichte en open leefruimtes te bieden met een moderne en functionele indeling. De woningen beschikken over een open woon- en eetkamer, een volledig ingerichte keuken met boven- en onderkasten en hoogwaardige afwerkingen. De slaapkamers zijn ruim en comfortabel, terwijl de badkamers zijn uitgerust met moderne materialen en elegante details.
Het wooncomplex beschikt over een gemeenschappelijk zwembad en aangelegde tuinen, waardoor een ontspannen omgeving voor de bewoners wordt gecreëerd. Alle woningen zijn voorzien van een voorinstallatie voor airconditioning en verwarming, buitenschrijnwerk met thermische onderbreking en dubbele beglazing, een aerothermisch systeem voor warm water en een versterkte veiligheidsdeur. Elk appartement beschikt ook over een eigen parkeerplaats en een berging in de kelder, met een lift naar alle verdiepingen.
Benijofar Een charmant stadje met alle voorzieningen
Benijofar is een gerenommeerd Spaans stadje dat een perfecte balans biedt tussen traditionele charme en modern leven. Het centrum van de stad biedt lokale winkels, supermarkten, apotheken, restaurants en een gastvrije sfeer het hele jaar door. Natuurliefhebbers kunnen genieten van nabijgelegen groene gebieden en wandelroutes, terwijl golfbanen en recreatiefaciliteiten op slechts een klein eindje rijden liggen.
Uitstekende verbindingen en belangrijke afstanden
De stranden van Guardamar del Segura liggen op ongeveer 9 km afstand. De golfbanen La Finca Golf en La Marquesa Golf liggen op ongeveer 6 km van het project. De waterparken in Rojales en Torrevieja liggen op ongeveer 4 km en 12 km afstand. Het winkelcentrum Zenia Boulevard ligt op ongeveer 17 km afstand. De internationale luchthaven van Alicante ligt op ongeveer 35 km afstand en biedt regelmatige vluchten naar heel Europa.
Een ideale woning of investeringsmogelijkheid
Dankzij het moderne ontwerp, de uitstekende locatie en de grote vraag naar huurwoningen in de omgeving zijn deze appartementen ideaal als permanente woning, vakantiehuis of slimme investering aan de Costa Blanca.
Neem vandaag nog contact met ons op
Ontdek uw nieuwe appartement in Benijofar. Neem nu contact met ons op voor meer informatie of om een privébezichtiging te regelen.