Apartamentos de Obra Nueva en Benijófar – Diseño, Confort y Ubicación Privilegiada
Apartamentos de nueva construcción en Benijófar Vida moderna en una ubicación privilegiada
Exclusiva promoción nueva en la Costa Blanca Sur
Esta nueva promoción residencial consta de 18 modernos apartamentos situados a la entrada de Benijófar, a poca distancia del centro de la ciudad. Ubicado en una de las zonas de más rápido crecimiento de la Costa Blanca Sur, el proyecto combina arquitectura contemporánea, materiales de calidad y una ubicación estratégica, ideal tanto para vivir como para invertir.
Tipos de apartamentos que se adaptan a cada estilo de vida
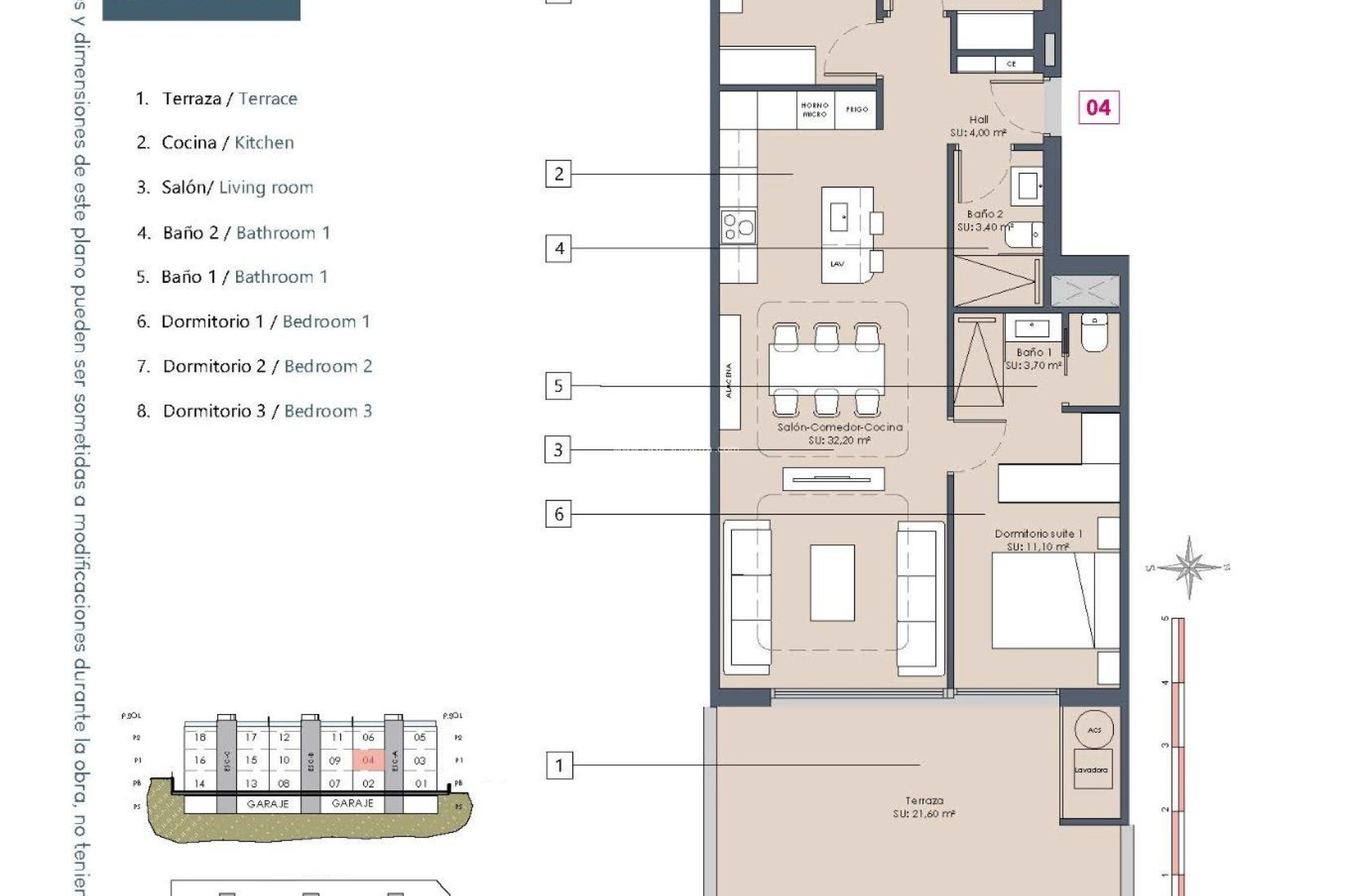
La promoción ofrece amplios apartamentos de tres dormitorios y dos baños, uno de ellos en suite. Los compradores pueden elegir entre viviendas en planta baja con amplias terrazas y jardines privados, apartamentos en plantas intermedias con generosas terrazas o áticos con terraza y solárium privado. El solárium incluye la preinstalación para una cocina de verano, perfecta para disfrutar del clima mediterráneo.
Diseño moderno y alto nivel de confort
Cada apartamento ha sido cuidadosamente diseñado para ofrecer espacios luminosos y abiertos con una distribución moderna y funcional. Las viviendas cuentan con un salón-comedor diáfano, una cocina totalmente equipada con armarios altos y bajos, y acabados de alta calidad en todas las estancias. Los dormitorios son amplios y cómodos, mientras que los baños están equipados con materiales modernos y detalles elegantes.
El complejo residencial incluye una piscina comunitaria y jardines paisajísticos, creando un ambiente relajante para los residentes. Todas las viviendas están equipadas con preinstalación de aire acondicionado y calefacción por conductos, carpintería exterior con rotura de puente térmico y doble acristalamiento, sistema aerotérmico para agua caliente y puerta de entrada de seguridad reforzada. Cada apartamento incluye también una plaza de aparcamiento privada y un trastero en el sótano, con acceso en ascensor a todas las plantas.
Benijófar, una ciudad con encanto y todos los servicios
Benijófar es una ciudad española bien establecida que ofrece un equilibrio perfecto entre el encanto tradicional y la vida moderna. El centro de la ciudad cuenta con tiendas locales, supermercados, farmacias, restaurantes y un ambiente acogedor durante todo el año. Los amantes de la naturaleza pueden disfrutar de las zonas verdes y las rutas de senderismo cercanas, mientras que los campos de golf y las instalaciones de ocio se encuentran a poca distancia en coche.
Excelentes conexiones y distancias clave
Las playas de Guardamar del Segura están a unos 9 km. Los campos de golf La Finca y La Marquesa están a unos 6 km de la urbanización. Los parques acuáticos de Rojales y Torrevieja se encuentran a unos 4 km y 12 km, respectivamente. El centro comercial Zenia Boulevard está a unos 17 km. El aeropuerto internacional de Alicante está a unos 35 km y ofrece vuelos regulares a toda Europa.
Una vivienda ideal o una oportunidad de inversión
Gracias a su diseño moderno, su excelente ubicación y la fuerte demanda de alquiler en la zona, estos apartamentos son ideales como residencia permanente, vivienda vacacional o inversión inteligente en la Costa Blanca.
Póngase en contacto con nosotros hoy mismo
Descubra su nuevo apartamento en Benijófar. Póngase en contacto con nosotros ahora para obtener más información o concertar una visita privada.