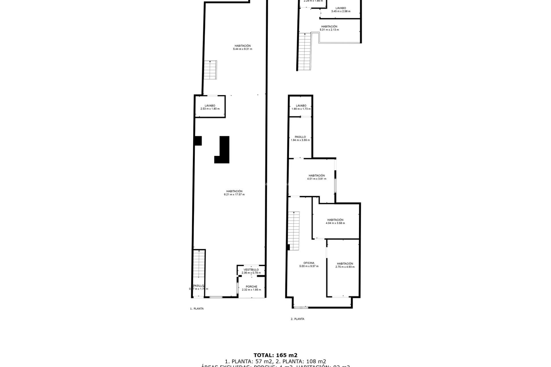
Nous proposons un vaste local commercial avec un appartement à l'étage, situé au Calle Ramón y Cajal, 13, juste à côté du célèbre Paseo Vistalegre. Ce bien dispose de 263 m² de surface construite, répartis entre un rez-de-chaussée idéal pour tout type d'activité commerciale et un étage supérieur, parfait pour un usage résidentiel ou comme espace de stockage. Un avantage majeur de cette propriété est qu'elle dispose d'une licence de pub, ce qui ajoute une valeur exceptionnelle pour ceux qui souhaitent ouvrir un établissement de restauration ou de divertissement dans l'une des zones les plus fréquentées de Torrevieja. Caractéristiques principales : Emplacement privilégié dans une zone à forte affluence piétonne. Grand rez-de-chaussée avec beaucoup d'espace pour développer plusieurs concepts commerciaux. Étage supérieur offrant la possibilité d'être aménagé en résidence ou en bureau. Licence de pub valide, permettant un démarrage immédiat des activités de restauration. Façade unique qui ajoute du caractère et une grande visibilité au commerce. Ce bien est parfait pour ceux qui recherchent un projet de rénovation avec un excellent retour sur investissement dans l'un des quartiers les plus prisés de Torrevieja. Donnez une nouvelle vie à cet espace et transformez-le en l’entreprise dont vous avez toujours rêvé ! Pour plus d'informations ou pour organiser une visite, n'hésitez pas à nous contacter.