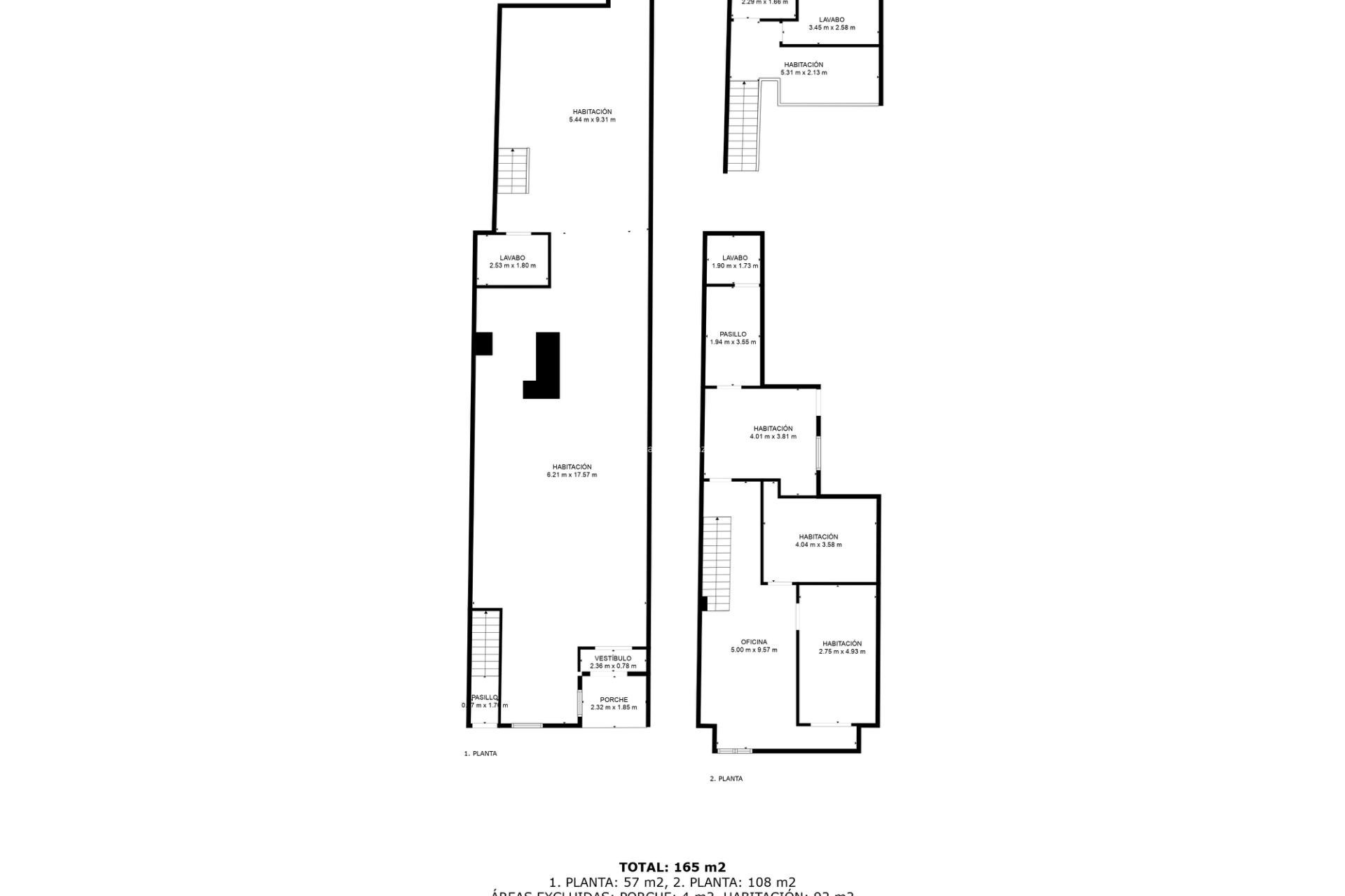
Wir bieten ein geräumiges Gewerbeobjekt mit einer Wohnung im Obergeschoss an, gelegen in der Calle Ramón y Cajal, 13, direkt neben dem bekannten Paseo Vistalegre. Diese Immobilie verfügt über 263 m² Gesamtfläche, verteilt auf ein Erdgeschoss, das sich ideal für verschiedene Geschäftsarten eignet, und ein Obergeschoss, das sich perfekt als Wohnraum oder Lagerfläche anbietet. Ein großer Vorteil dieser Immobilie ist die vorhandene Pub-Lizenz, was einen besonderen Mehrwert für diejenigen bietet, die ein Gastronomie- oder Unterhaltungsunternehmen in einer der belebtesten Gegenden von Torrevieja eröffnen möchten. Hauptmerkmale: Erstklassige Lage in einem Gebiet mit hoher Fußgängerfrequenz. Geräumiges Erdgeschoss mit viel Platz zur Entwicklung unterschiedlicher Geschäftskonzepte. Obergeschoss mit Potenzial zur Nutzung als Wohnraum oder Büro. Gültige Pub-Lizenz, die den sofortigen Start von Gastronomieaktivitäten ermöglicht. Einzigartige Fassade, die den Charakter und die Sichtbarkeit des Geschäfts verstärkt. Diese Immobilie ist ideal für diejenigen, die ein Renovierungsprojekt mit hervorragendem Return on Investment in einer der begehrtesten Gegenden von Torrevieja suchen. Geben Sie diesem Raum neues Leben und verwirklichen Sie das Geschäft, von dem Sie immer geträumt haben! Für weitere Informationen oder zur Vereinbarung einer Besichtigung stehen wir Ihnen gerne zur Verfügung.