Increíble Villa Independiente en venta en La Finca, Algorfa. A 20km de las Playas de Torrevieja, con buenas comunicaciones que te permite desplazarte a cualquier destino con facilidad, aeropuertos, grandes ciudades, Murcia, Alicante a tan solo 30 minutos en coche. Urbanización que linda con uno de los mejores campos de Golf de la Costa Blanca, La Finca Golf, con tres campos y 18 hoyos con unos recorridos impresionantes. A 2km del centro cívico con todos los servicios básicos disponibles, farmacias, tiendas, supermercados, bares y restaurantes.
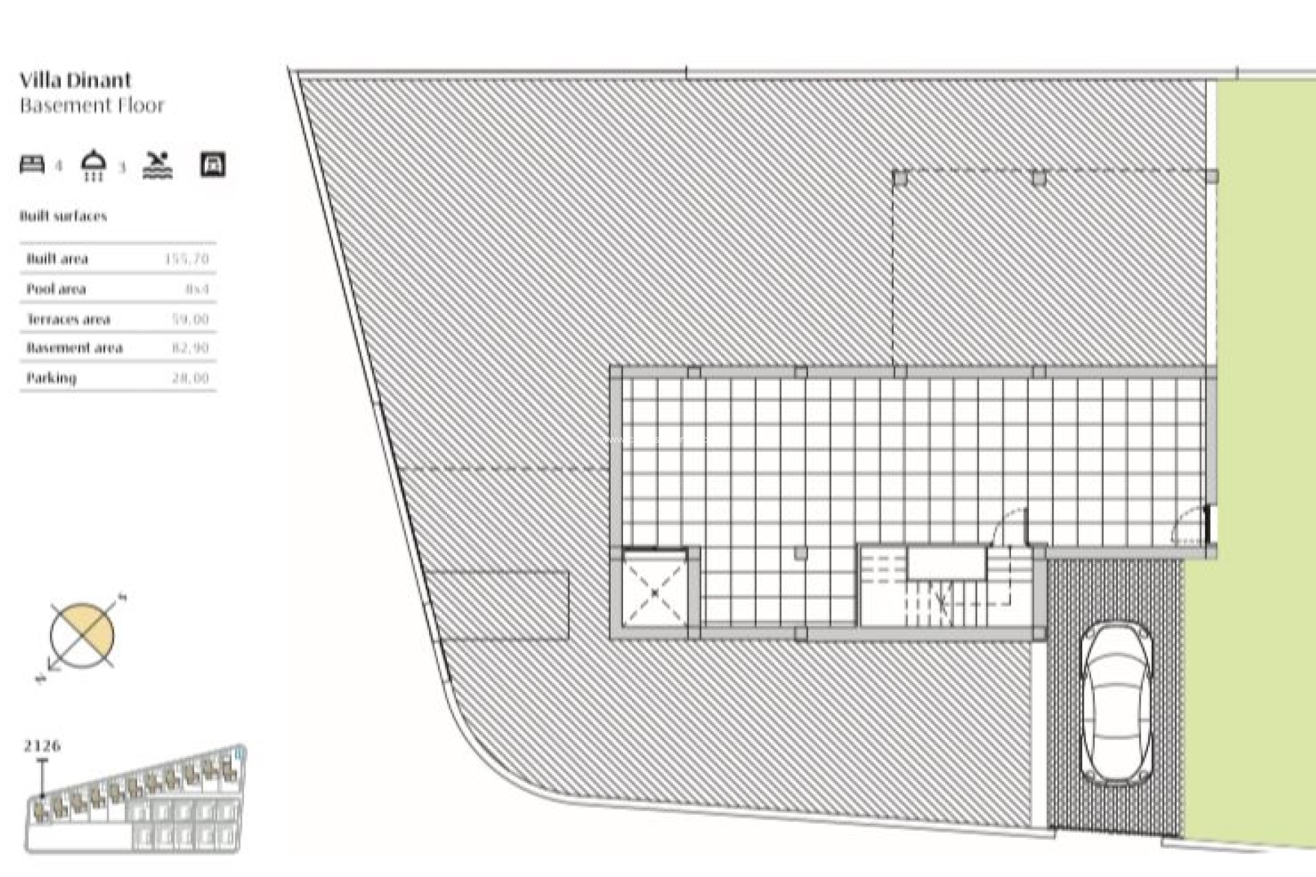
Villa de dos plantas situada en una parcela de 420.00m² con grandes zonas verdes ajardinadas, dos plazas de aparcamiento descubiertas y una bonita piscina privada. Interior de 155.70m se distribuyen en un gran salón comedor unido a una bonita cocina americana con barra desayunadora en península, un dormitorio doble y un baño en la planta baja. Planta alta con tres dormitorios dobles, uno de ellos en suite con baño y vestidor incorporados, un baño independiente y acceso a una Magnífica terraza. Planta sótano con un gran espacio que podrás aprovechar como sala de descanso, juegos o gimnasio.