Erstaunliche freistehende Villa zum Verkauf in La Finca, Algorfa. 20 km von den Stränden von Torrevieja entfernt, mit guter Kommunikation, die es Ihnen ermöglicht, sich mit Leichtigkeit an jedes Ziel zu bewegen, Flughäfen, Großstädte, Murcia, Alicante nur 30 Minuten mit dem Auto. Urbanisation, die an einen der besten Golfplätze an der Costa Blanca, La Finca Golf, mit drei Plätzen und 18 Löchern mit beeindruckenden Plätzen grenzt. 2 km vom Bürgerzentrum mit allen grundlegenden Dienstleistungen, Apotheken, Geschäften, Supermärkten, Bars und Restaurants entfernt.
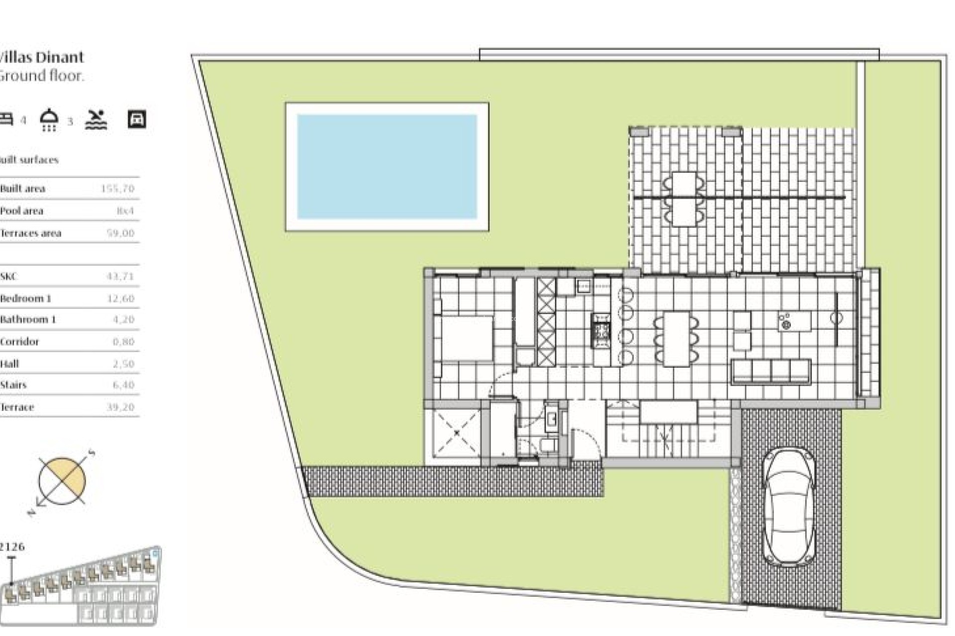
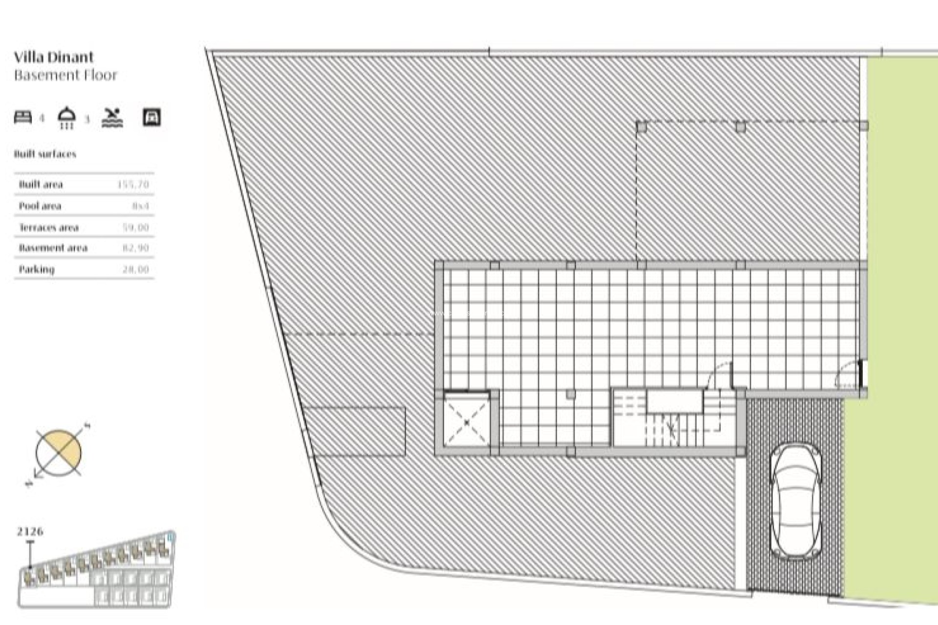
Zweistöckige Villa auf einem Grundstück von 420,00 m² mit großen Grünflächen, zwei nicht überdachten Parkplätzen und einem schönen privaten Swimmingpool. Der Innenraum von 155,70 m verteilt sich auf ein großes Wohnzimmer, das an eine schöne amerikanische Küche mit Frühstücksbar auf der Halbinsel angeschlossen ist, ein Schlafzimmer mit Doppelbett und ein Badezimmer im Erdgeschoss. Obergeschoss mit drei Doppelzimmern, eines davon en suite mit eigenem Bad und Ankleideraum, einem separaten Badezimmer und Zugang zu einer herrlichen Terrasse. Untergeschoss mit einem großen Raum, den Sie als Ruheraum, Spiele oder Fitnessraum nutzen können.