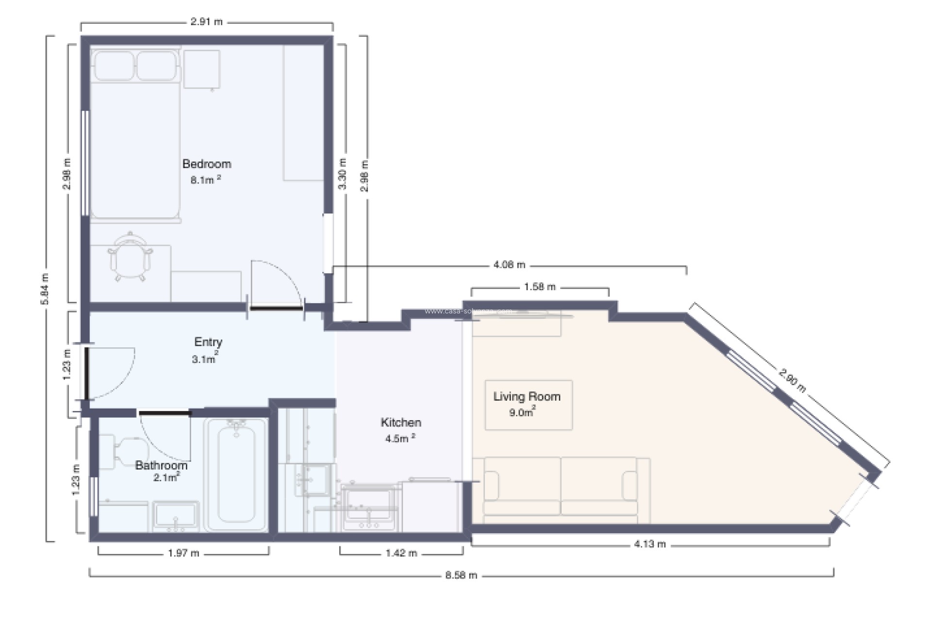
Apartment for sale in Torrevieja, located close to the city centre and next to Colegio La Inmaculada. The property benefits from a practical location with all daily services within walking distance.The apartment offers 1 bedroom and 1 bathroom, with a total surface of 33 m². It is situated on the third floor of a building with lift and communal swimming pool.The property is in good condition and is sold as seen in the photos, ready to move in or rent out.Thanks to its central location, all amenities such as shops, restaurants and services are easily accessible.Central location in TorreviejaLocated next to Colegio La Inmaculada and close to the city centre, the apartment offers easy access to all essential services.Functional 1-bedroom layoutThe property features a simple and practical layout, ideal for a single person or a couple.Building with communal poolThe residence includes a lift and a communal swimming pool.Good investment opportunityDue to its location and low maintenance, this property is a good option as a holiday home or rental investment.