Duurzame mediterrane villa's te koop in Macenas, Almería
Ervaar de essentie van het mediterrane leven met dit nieuwe project van exclusieve villa's in Macenas, Almería. Gelegen in een omheind resort op slechts 600 meter van het strand en omgeven door ongerepte natuur, zijn deze woningen perfect voor wie op zoek is naar ontspanning, elegantie en duurzaamheid aan zee.
Exclusief resortleven aan de Middellandse Zee
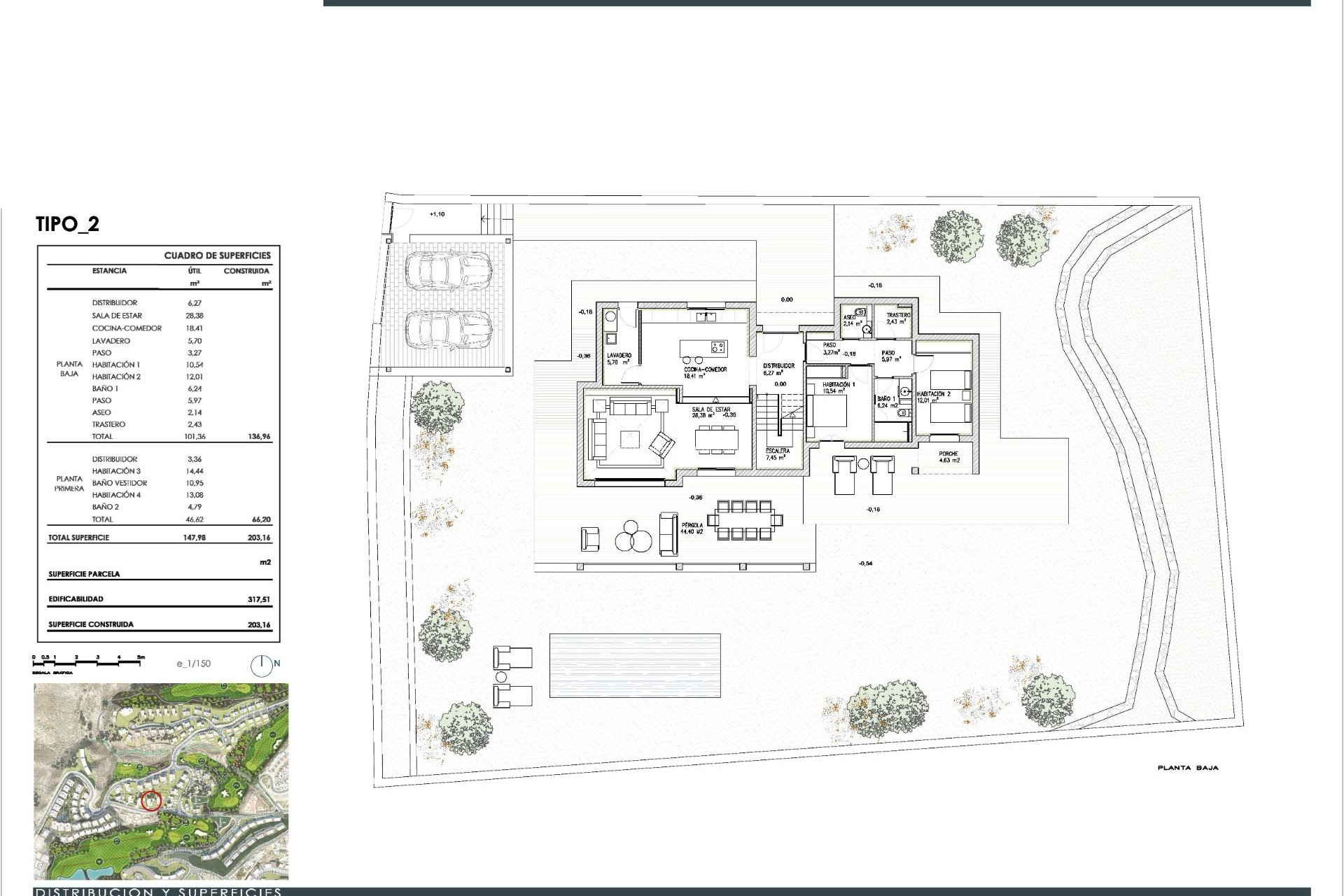
Dit nieuwe woonproject biedt vrijstaande villa's met 3 of 4 slaapkamers op ruime percelen. Gelegen in een privéresort aan de kust van Almería, beschikt elke woning over royale terrassen met prachtig uitzicht op zee of de golfbaan, ideaal om het hele jaar door te genieten van het milde klimaat. Het resort ligt op slechts 6 km van Mojácar Pueblo, een charmant dorpje dat bekend staat om zijn witgekalkte huizen en cultureel erfgoed.
Modern design met mediterrane flair
Deze villa's combineren hedendaagse architectuur met traditionele mediterrane accenten en gaan naadloos op in het natuurlijke landschap van Macenas. Het project is gebouwd met duurzame materialen en een waterarm landschap en promoot een milieubewuste levensstijl. Er zijn ook plannen voor een toekomstige 18-holes golfbaan die geïntegreerd is in de omgeving, wat een meerwaarde op lange termijn betekent voor de gemeenschap.
Premium voorzieningen en hoogrendementssystemen
Elke villa is voorzien van een volledig uitgeruste, aanpasbare SANTOS-keuken met hoogwaardige apparatuur. De klimaatregeling wordt verzorgd door airconditioning met luchtkanalen en vloerverwarming op basis van een energiezuinig aerothermisch systeem. Het Airzone smart zoning-systeem zorgt voor maximaal thermisch comfort in de hele woning.
Extra voorzieningen zijn onder meer:
Technal aluminium buitenschrijnwerk met thermische onderbreking
Gemotoriseerde verstelbare aluminium luiken
Privézwembad van 7,5 m x 3,2 m
Gelakte aluminium pergola
Optionele extra's zoals open haard, zomerkeuken en op maat gemaakte meubelpakketten
Toplocatie en bezienswaardigheden in de buurt
Strand van Macenas – 600 m
Mojácar Pueblo – 6 km
Marina de la Torre Golf – 9 km
Natuurpark Cabo de Gata – 30 km
Stad Almería – 88 km
Luchthaven Almería – 77 km
Uw mediterrane toevluchtsoord wacht op u
Of u nu op zoek bent naar een permanente woning, een vakantiehuis of een solide investering, deze duurzame mediterrane villa's in Macenas bieden een ongeëvenaarde levensstijl aan de kust van Almería. Neem vandaag nog contact met ons op voor meer informatie of om een bezoek te plannen.
839