Nieuwbouw halfvrijstaande villa’s aan het strand in Moncofa met uitzicht op zee
Toplocatie aan de kust van Castellón
Ontdek een exclusief project van moderne halfvrijstaande villa’s, gelegen aan de eerste lijn van het strand in Moncofa, tussen de kustgebieden van Chilches en Moncofa. Deze bevoorrechte locatie aan de Costa del Azahar biedt directe toegang tot rustige zandstranden en een ontspannen mediterrane levensstijl. De omgeving is ideaal voor zowel permanente bewoning als vakantieverblijf, met lokale restaurants, strandbars, supermarkten en essentiële voorzieningen op korte afstand. Moncofa is goed bereikbaar via de weg, waardoor nabijgelegen steden zoals Castellón en Valencia gemakkelijk te bereiken zijn.
Modern ontwerp en functionele indeling
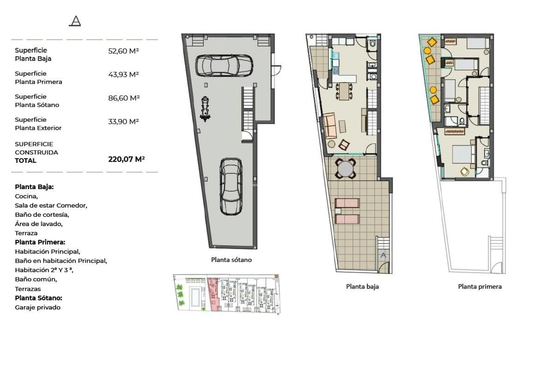
Dit kleinschalige project bestaat uit slechts 7 elegante woningen, ontworpen met strakke architectonische lijnen en een focus op comfort en dagelijks leven. Elke woning beschikt over 3 slaapkamers, 2 badkamers, waarvan één en-suite, en een extra gastentoilet. De woningen zijn verdeeld over drie verdiepingen, waardoor de ruimte en het natuurlijke licht optimaal worden benut.
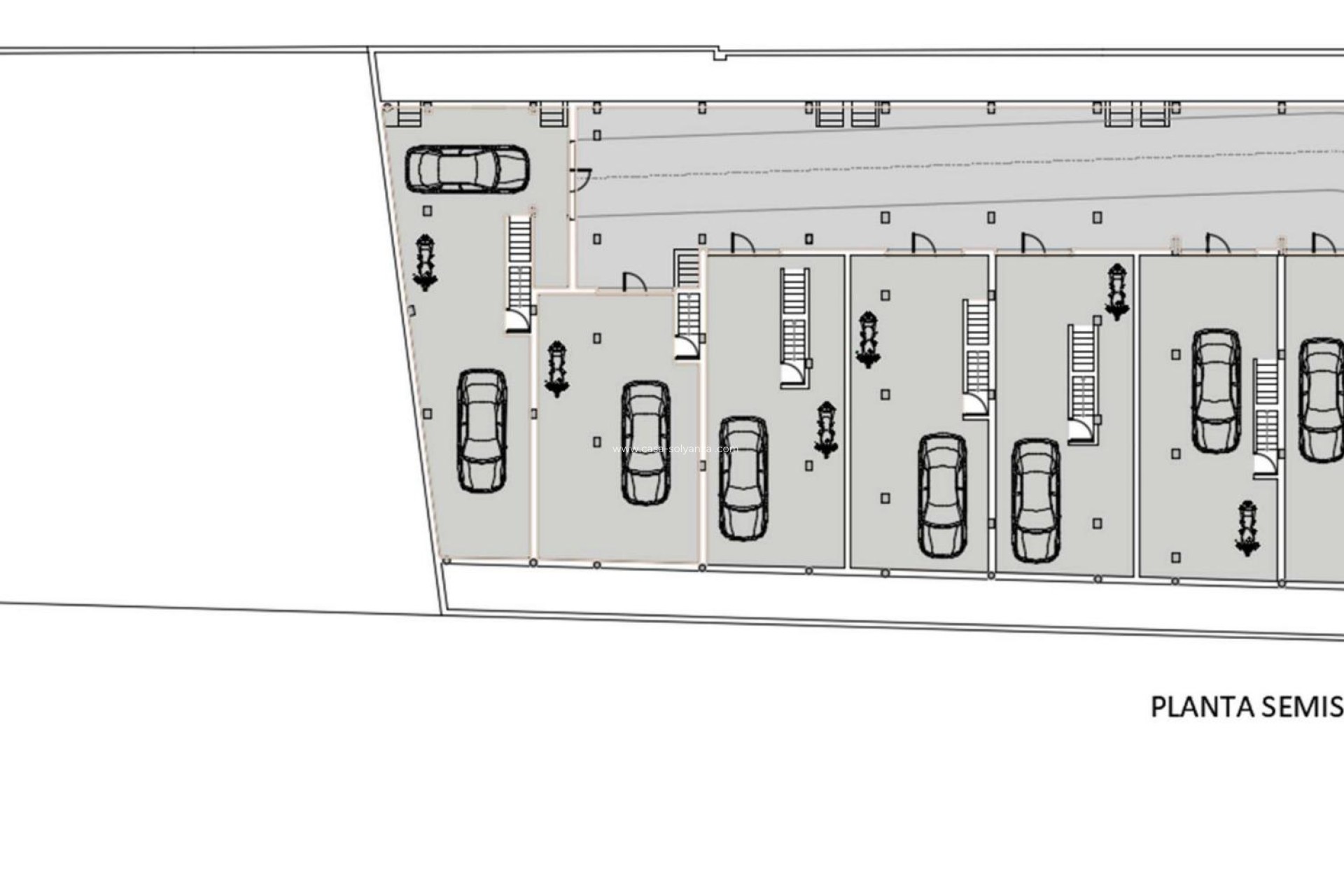
De begane grond biedt een open woon- en eetkamer met een volledig uitgeruste keuken, die naadloos aansluit op een privéterras met prachtig uitzicht op zee. Op de eerste verdieping bevinden zich de slaapkamers, waaronder een ruime master suite, terwijl sommige woningen op dit niveau ook een terras hebben. Het souterrain biedt een privégarage voor 1 of 2 auto's en extra opslagruimte.
Hoogwaardige afwerking en klaar om te betrekken
Alle villa's worden volledig gemeubileerd opgeleverd. De keukens zijn voorzien van apparatuur en de badkamers zijn compleet met meubilair, spiegels en doucheschermen. De woningen beschikken ook over volledig geïnstalleerde airconditioning en een efficiënt aerothermisch systeem voor warm water, wat het hele jaar door comfort en energie-efficiëntie garandeert.
Exclusieve gemeenschap en levensstijl
Het wooncomplex beschikt over een gemeenschappelijk zwembad en aangelegde tuinen, allemaal gelegen in een omgeving direct aan het strand. Dit zorgt voor een rustige en veilige sfeer, perfect om te genieten van het mediterrane klimaat en het buitenleven.
Afstanden tot belangrijke bezienswaardigheden
Strand van Moncofa: 0 km
Strand van Chilches: 2 km
Stadscentrum van Castellón: 30 km
Stad Valencia: 50 km
Luchthaven Valencia: 55 km
Luchthaven Castellón: 45 km
Dichtstbijzijnde golfbanen: ongeveer 20 km
Uw huis aan de Middellandse Zee wacht op u
Of u nu op zoek bent naar een permanente woning, een vakantiehuis of een slimme investering, deze halfvrijstaande villa's aan het strand in Moncofa bieden een unieke kans om te genieten van de zee, comfort en modern design in een van de meest authentieke kustgebieden van Spanje. Neem vandaag nog contact met ons op voor meer informatie of om een bezichtiging te regelen.
839