Exclusieve nieuwbouwwoningen op 300 m van het strand in Torre de la Horadada
Exclusieve nieuwbouwwoningen op 300 m van het strand in Torre de la Horadada
Luxe wonen aan de kust op een toplocatie
Ontdek dit exclusieve nieuwbouwproject in Torre de la Horadada, een van de meest gewilde kustplaatsen in het zuiden van Alicante. Deze villa's liggen op slechts 300 m van de Middellandse Zee en op loopafstand van winkels, restaurants en dagelijkse voorzieningen. Ze bieden een uitzonderlijke kans om te genieten van de levensstijl van de Costa Blanca. Torre de la Horadada staat bekend om zijn ontspannen sfeer, prachtige boulevard en fijne zandstranden, waardoor het ideaal is voor zowel permanent wonen als vakantiegebruik.
Laatste sleutelklare villa volledig uitgerust
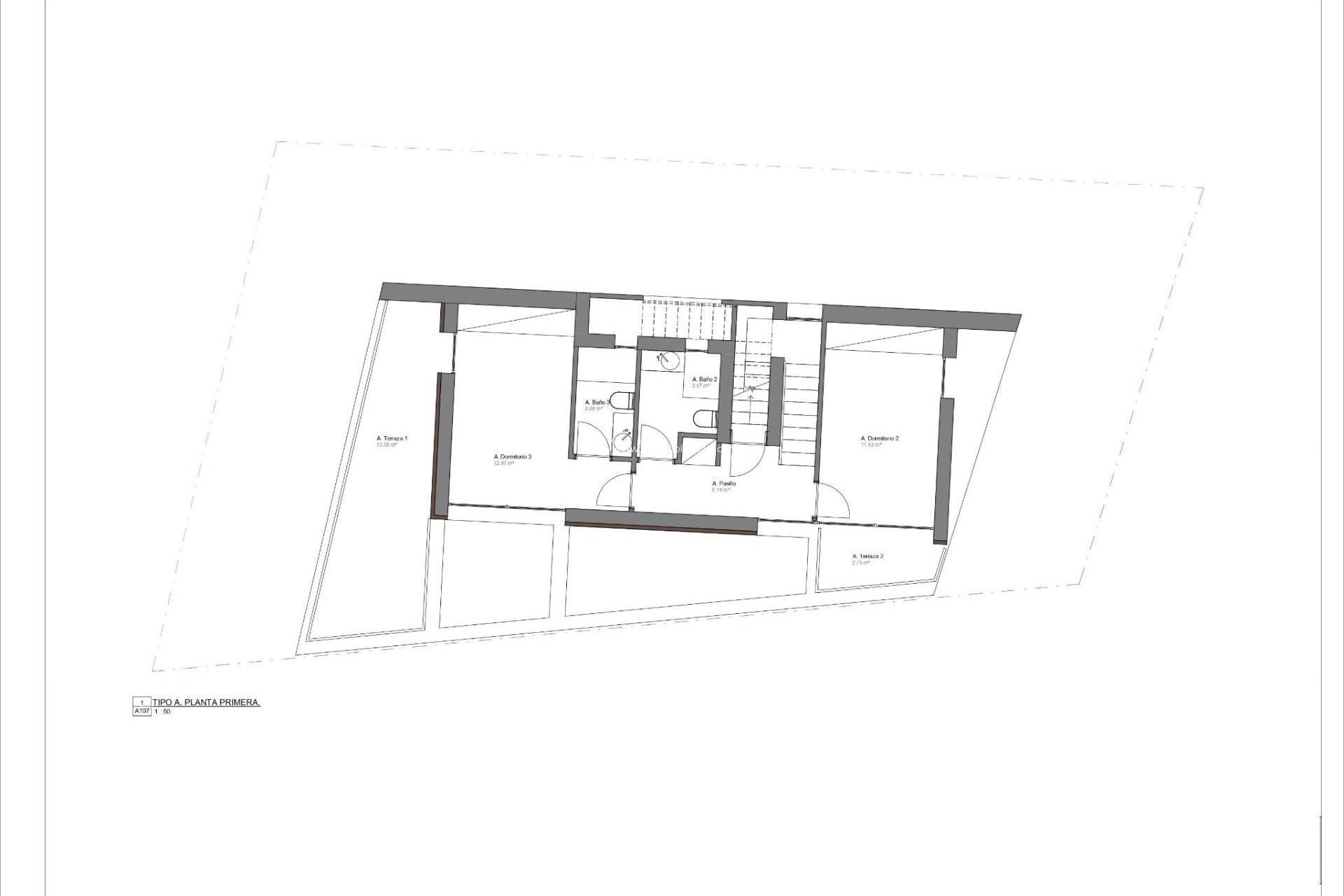
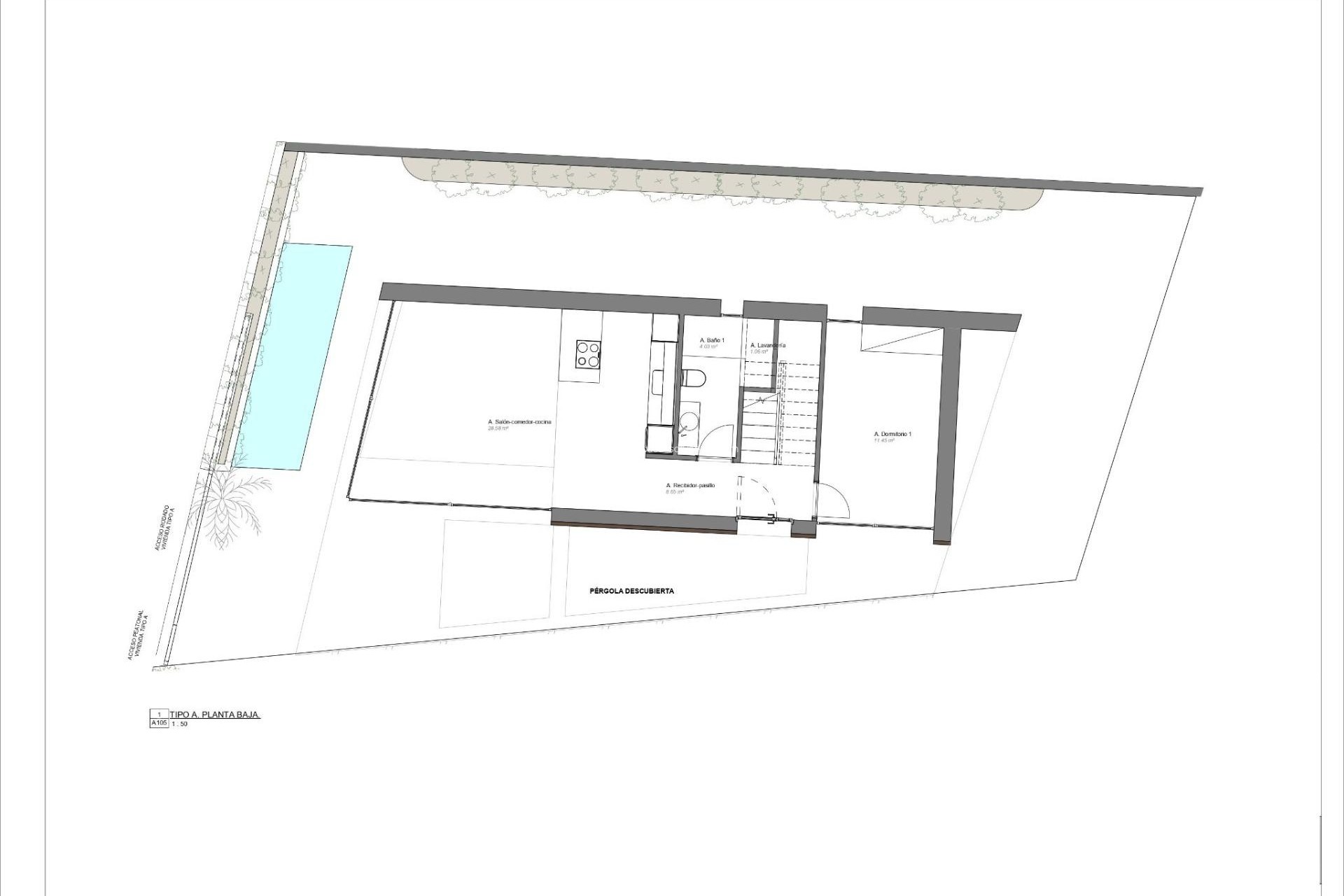
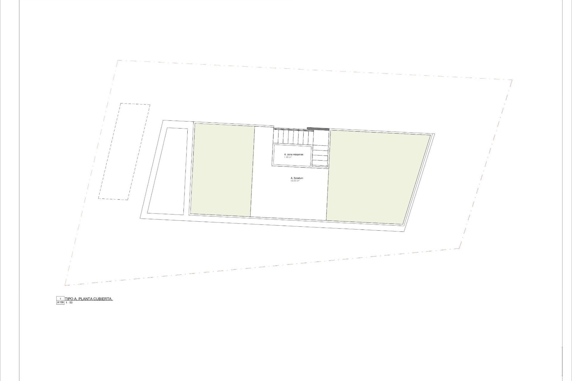
Dit boetiekproject bestaat uit slechts vier onafhankelijke villa's, waarvan de laatste unit sleutelklaar en volledig gemeubileerd beschikbaar is. De villa wordt compleet met meubilair, apparatuur en airconditioning geleverd, zodat u direct kunt intrekken en kunt genieten van uw nieuwe huis aan zee. De villa ligt op een privéterrein van ongeveer 207 m2 en biedt ongeveer 130 m2 aan bebouwde ruimte, verdeeld over de begane grond, de eerste verdieping en een privé-dakterras.
Modern ontwerp met privézwembad en solarium
De villa heeft een eigentijds ontwerp met open en lichte ruimtes. Binnen vindt u drie ruime slaapkamers en drie badkamers, een woon-eetkamer met een open keuken en directe toegang tot de tuin en het privézwembad. Het dakterras is een ideale plek om te ontspannen, te zonnen of te genieten van het uitzicht, waardoor het het hele jaar door een perfecte buitenruimte is.
Hoogwaardige specificaties en comfort
De woning is gebouwd volgens hoge normen en beschikt over een versterkte voordeur, gemotoriseerde rolluiken in de slaapkamers, een privézwembad en een basisdomoticasysteem voor elektronische bediening. Er is een volledig geïnstalleerd airconditioningsysteem, dat in alle seizoenen voor comfort zorgt. Een eigen parkeerplaats op het perceel zorgt voor extra gemak en veiligheid.
Torre de la Horadada en omgeving
Torre de la Horadada biedt een charmante kustomgeving met een lange boulevard, jachthavens en een breed scala aan restaurants, bars en lokale winkels. De nabijgelegen stranden van Torre de la Horadada en Mil Palmeras behoren tot de beste in de omgeving en zijn ideaal om te zwemmen, watersporten, snorkelen en duiken. Het gebied is goed bereikbaar en omgeven door golfbanen, winkelcentra en recreatiemogelijkheden.
Afstanden tot belangrijke bezienswaardigheden
Strand: 0,3 km
Winkelgebied Plaza Nueva: 0,2 km
Lo Romero Golf: 7 km
Jachthaven van Torre de la Horadada: 1,5 km
Luchthaven Murcia Corvera: 45 km
Luchthaven Alicante: 50 km
Uw nieuwe huis aan de Middellandse Zee wacht op u
Deze instapklare villa in Torre de la Horadada is een unieke kans om een moderne woning te bezitten op slechts een steenworp afstand van het strand. Neem vandaag nog contact met ons op om een bezichtiging te regelen en deze uitzonderlijke nieuwbouwwoning aan de Costa Blanca te bemachtigen.