Luxe nieuwbouwwilla’s te koop in Moraira-Teulada, vlak bij zee
Exclusieve moderne villa’s in Moraira, Noord-Costa Blanca
Ontdek een exclusief woonproject van slechts vier luxe villa’s, gelegen in de prestigieuze wijk Moravit in Moraira, binnen de gemeente Teulada aan de Noord-Costa Blanca. Dit kleinschalige project biedt een uitzonderlijke kans om een moderne mediterrane woning te bezitten op slechts 900 meter van de zee, op een van de meest gewilde kustlocaties in de regio.
Moraira staat bekend om zijn charmante vissershaven, ontspannen sfeer en prachtige stranden met kristalhelder water. In tegenstelling tot veel grotere badplaatsen heeft Moraira zijn traditionele karakter behouden en biedt het tegelijkertijd uitstekende restaurants, boetiekjes en recreatieve voorzieningen. De omgeving wordt gekenmerkt door schilderachtige kustbaaien, wijngaarden en natuurlijke landschappen, waardoor het een perfecte bestemming is voor zowel permanente bewoning als luxe vakantiehuizen.
Avant-gardistische architectuur met ruime indelingen
Het project biedt vier verschillende villamodellen met een bebouwde oppervlakte variërend van ongeveer 250 m² tot 380 m², allemaal gelegen op royale percelen van meer dan 1000 m². De architectuur combineert een eigentijds ontwerp met traditionele mediterrane elementen, zoals witte gepleisterde muren, natuursteen en warme houten accenten.
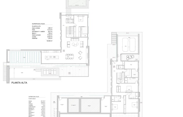
Dit villamodel is verdeeld over twee verdiepingen met een functionele en elegante indeling. Op de begane grond bevindt zich het hoofdslaapgedeelte met drie ruime slaapkamers en een privégarage voor twee auto's. De bovenverdieping is ontworpen als de belangrijkste leefruimte, met een open woonkamer, eethoek en designkeuken met kookeiland.
Grote ramen van vloer tot plafond openen de binnenruimtes naar een panoramisch uitzicht op het omringende landschap en de mediterrane lucht. Een pergola strekt zich uit naar het terras om een comfortabele buitenruimte te creëren met barbecueplaats, ideaal voor het ontvangen van gasten of om te ontspannen met familie en vrienden.
Luxe afwerking en moderne technologie
Elke villa is gebouwd met hoogwaardige materialen en hoogwaardige afwerking om comfort, efficiëntie en een eigentijdse stijl te bieden.
Privé-infinityzwembad
Aangelegde tuin met bomen en automatisch irrigatiesysteem
Ingebouwde LED-verlichting door het hele huis
Beveiligde toegangsdeur
Designkeuken volledig uitgerust met BOSCH-apparatuur
Vloerverwarming en airconditioningsysteem met onafhankelijke thermostaten
AIRZONE-klimaatbeheersingssysteem
Lift die beide verdiepingen met elkaar verbindt
Fotovoltaïsch zonnepaneelsysteem van 4 kW
Alle leefruimtes zijn gericht op het terras, de tuin en het zwembad, waardoor een natuurlijke verbinding ontstaat tussen binnen- en buitenleven.
Toplocatie nabij stranden en attracties aan de kust
Playa de l'Ampolla 1 km
Cala Cap Blanc 1,2 km
Cala del Moraig 7 km
Club de Golf Ifach 5 km
Jachthaven en haven van Moraira 2 km
Luchthaven Alicante-Elche 90 km
Luchthaven Valencia 120 km
De rustige woonomgeving van Moravit biedt groene landschappen en prachtige uitzichten, terwijl het levendige stadscentrum van Moraira toch dichtbij blijft.
Ontdek luxe wonen in Moraira
Deze uitzonderlijke villa's combineren een elegant mediterraan ontwerp, ruime percelen en een bevoorrechte locatie dicht bij de zee. Neem vandaag nog contact met ons op voor meer informatie of om een privébezichtiging in te plannen en uw nieuwe luxe woning in Moraira aan de Costa Blanca veilig te stellen.
839