Nieuwbouwwoningen en bungalows te koop in Pilar de la Horadada, vlakbij het strand
Nieuwbouwwoningen en bungalows te koop in Pilar de la Horadada, vlakbij het strand
Exclusief woonproject aan de zuidelijke Costa Blanca
Ontdek dit moderne nieuwbouwproject in Pilar de la Horadada, de meest zuidelijke stad aan de Costa Blanca. Dit boetiekproject biedt een selectie van eigentijdse appartementen en bungalows die zijn ontworpen om comfort, functionaliteit en een mediterrane levensstijl te combineren.
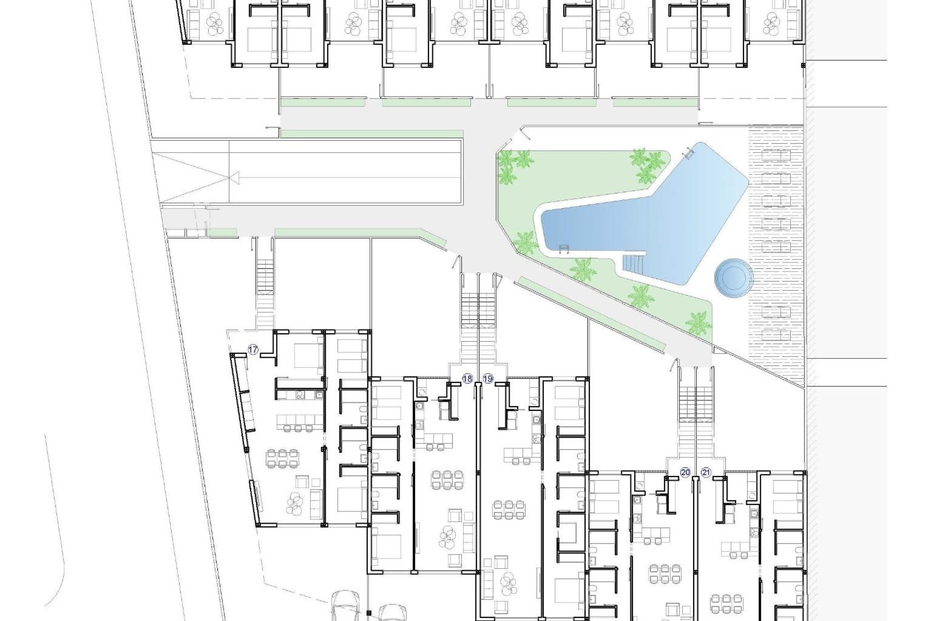
Het project bestaat uit slechts 26 zorgvuldig ontworpen woningen met 2 of 3 slaapkamers en 2 badkamers, waardoor het een ideale optie is voor zowel permanente bewoning als vakantieverblijf. Het complex is gelegen in een rustige woonwijk op loopafstand van het stadscentrum, waar bewoners kunnen genieten van restaurants, cafés, supermarkten, lokale winkels en alle essentiële voorzieningen.
Pilar de la Horadada is een charmant Spaans stadje dat bekend staat om zijn gastvrije sfeer, levendige hoofdstraat en prachtige pleinen. Met uitstekende verbindingen naar nabijgelegen kustgebieden en golfresorts is het een populaire bestemming voor internationale kopers die op zoek zijn naar zon en levenskwaliteit.
Appartementen en bungalows met privé buitenruimtes
Het project biedt twee verschillende soorten woningen die passen bij verschillende levensstijlen.
Het complex omvat 16 moderne appartementen. Kopers kunnen kiezen tussen appartementen op de begane grond met privétuinen, appartementen op de middelste verdieping met ruime terrassen of penthouses met privéterrassen en solariums op het dak.
Er zijn ook 10 bungalows beschikbaar. De bungalows op de begane grond hebben een eigen tuin en parkeerplaats op het perceel, terwijl de bungalows op de bovenste verdieping terrassen en privé-solariums hebben.
Er zijn optionele parkeerplaatsen en opslagruimtes in de kelder beschikbaar tegen een meerprijs.
Alle woningen zijn ontworpen met lichte interieurs, open indelingen en comfortabele woonruimtes die op natuurlijke wijze overgaan in de buitenruimtes.
Hoogwaardige bouw en moderne voorzieningen
De woningen zijn gebouwd met hoogwaardige materialen en moderne systemen om het hele jaar door comfort en energie-efficiëntie te garanderen.
Ingerichte keukens
Volledig uitgeruste badkamers met doucheschermen en vloerverwarming
Energiezuinig aerothermisch warmwatersysteem
Voorbereiding voor airconditioning met luchtkanalen
Bewoners kunnen ook gebruikmaken van een gemeenschappelijk zwembad, omgeven door aangelegde tuinen en ligweiden, waardoor een ontspannen omgeving ontstaat om te genieten van het mediterrane klimaat.
Uitstekende locatie dicht bij stranden en golfbanen
Het project ligt op een strategische locatie, dicht bij enkele van de beste stranden en golfbanen in de regio.
Strand van Torre de la Horadada 3 km
Strand van Mil Palmeras 3 km
Lo Romero Golf 6 km
Internationale luchthaven van Murcia 45 km
Luchthaven Alicante Elche 75 km
Het gebied biedt ook uitstekende wegverbindingen naar nabijgelegen kustplaatsen, jachthavens en recreatiefaciliteiten langs zowel de Costa Blanca als de Costa Calida.
Vind uw nieuwe thuis in Pilar de la Horadada
Dit aantrekkelijke nieuwbouwcomplex biedt moderne woningen, hoogwaardige afwerking en een fantastische locatie dicht bij het strand. Neem vandaag nog contact met ons op voor meer informatie of om een bezichtiging te regelen en uw nieuwe woning aan de Costa Blanca te bemachtigen.