Reclame. Herverkoop Murcia, Murcia

Ref. CSRES-90569

145.000€

Reclame. Herverkoop Murcia, Murcia

Ref. CSRES-90569
Ref. CSRES-90569

145.000€

Reclame. Herverkoop Murcia, Murcia

Ref. CSRES-90569
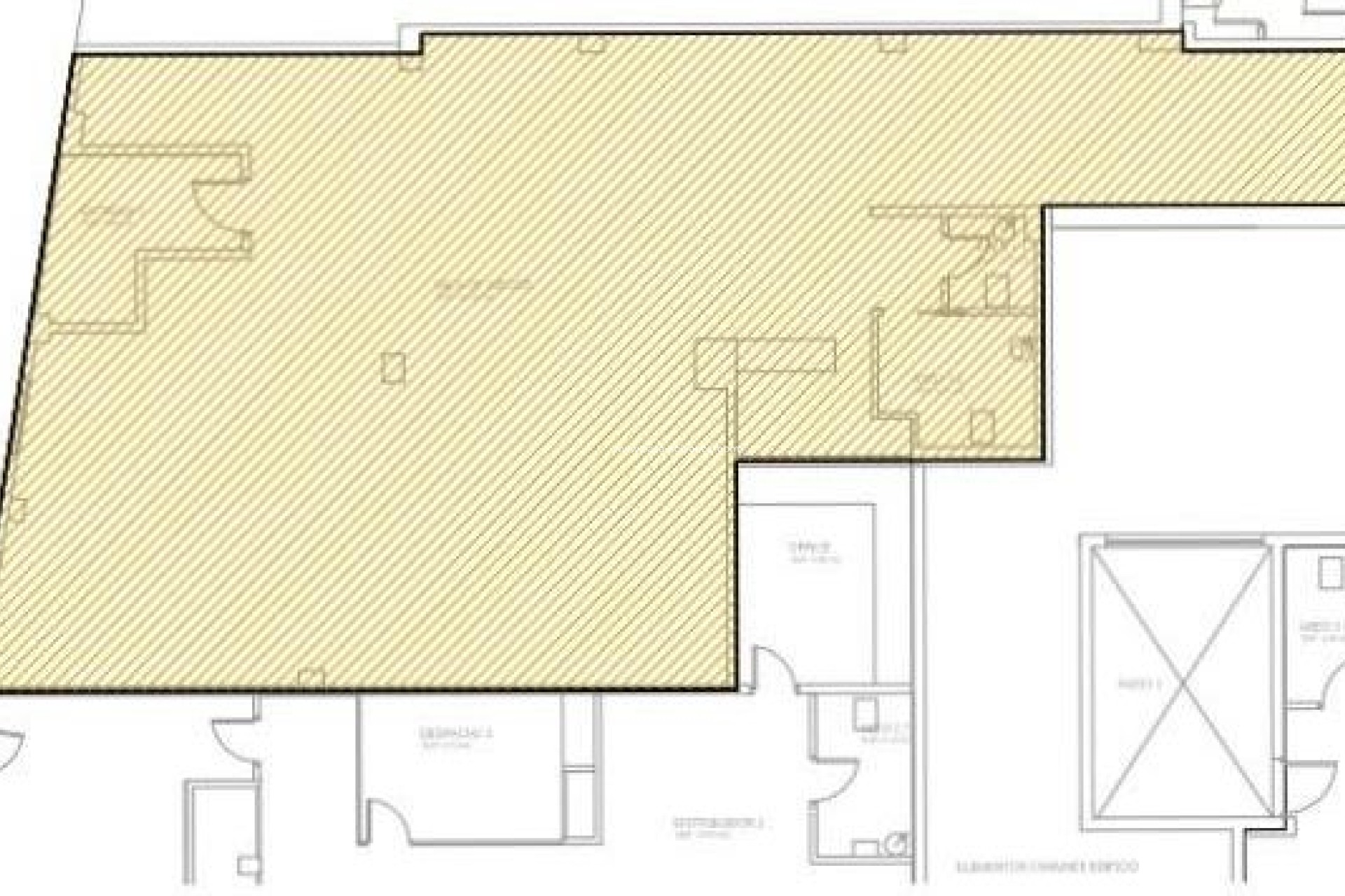
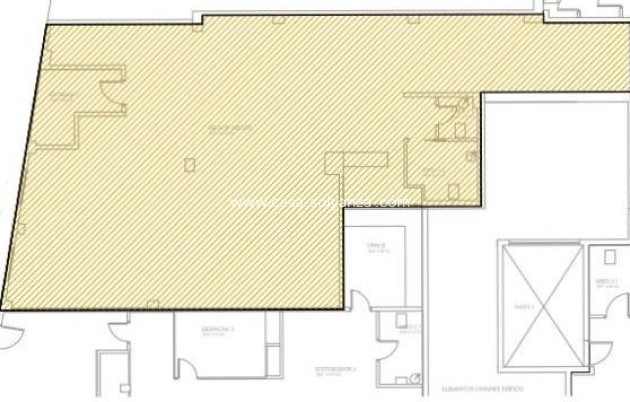
  • 168m2

Kenmerken

Locatie

Contacteer ons.

Verwerkingsverantwoordelijke: Casa Solyanza, Doel van de verwerking: Beheer en controle van de diensten die worden aangeboden via de Vastgoeddiensten-website, Verzenden van informatie via nieuwsbrief en andere, Rechtsgrond: Met toestemming, Ontvangers: Gegevens worden niet gedeeld, behalve voor boekhoudkundige doeleinden, Rechten van betrokkenen: Toegang, rectificatie en verwijdering van gegevens, verzoek om overdraagbaarheid, bezwaar tegen verwerking en verzoek om beperking daarvan, Herkomst van gegevens: De Betrokkene, Aanvullende informatie: U kunt aanvullende en gedetailleerde informatie over gegevensbescherming Hier raadplegen.
WhatsApp