Nieuwbouwappartementen in Rojales, dicht bij golfbanen en stranden
Nieuwbouwappartementen in Rojales, dicht bij golfbanen en stranden
Modern wonen in een groeiende wijk van Rojales
Dit nieuwe woonproject ligt in een moderne uitbreidingswijk van het charmante stadje Rojales, in het hart van de Costa Blanca Zuid. Het project bestaat in de eerste fase uit 14 nieuwbouwwoningen, ontworpen om comfort, kwaliteit en een uitstekende locatie te bieden. De woonwijk ligt op loopafstand van alle dagelijkse voorzieningen, zoals supermarkten, restaurants, banken en apotheken, waardoor het ideaal is voor zowel permanent wonen als vakantiegebruik.
Keuze uit woningen op de begane grond of bovenste verdieping
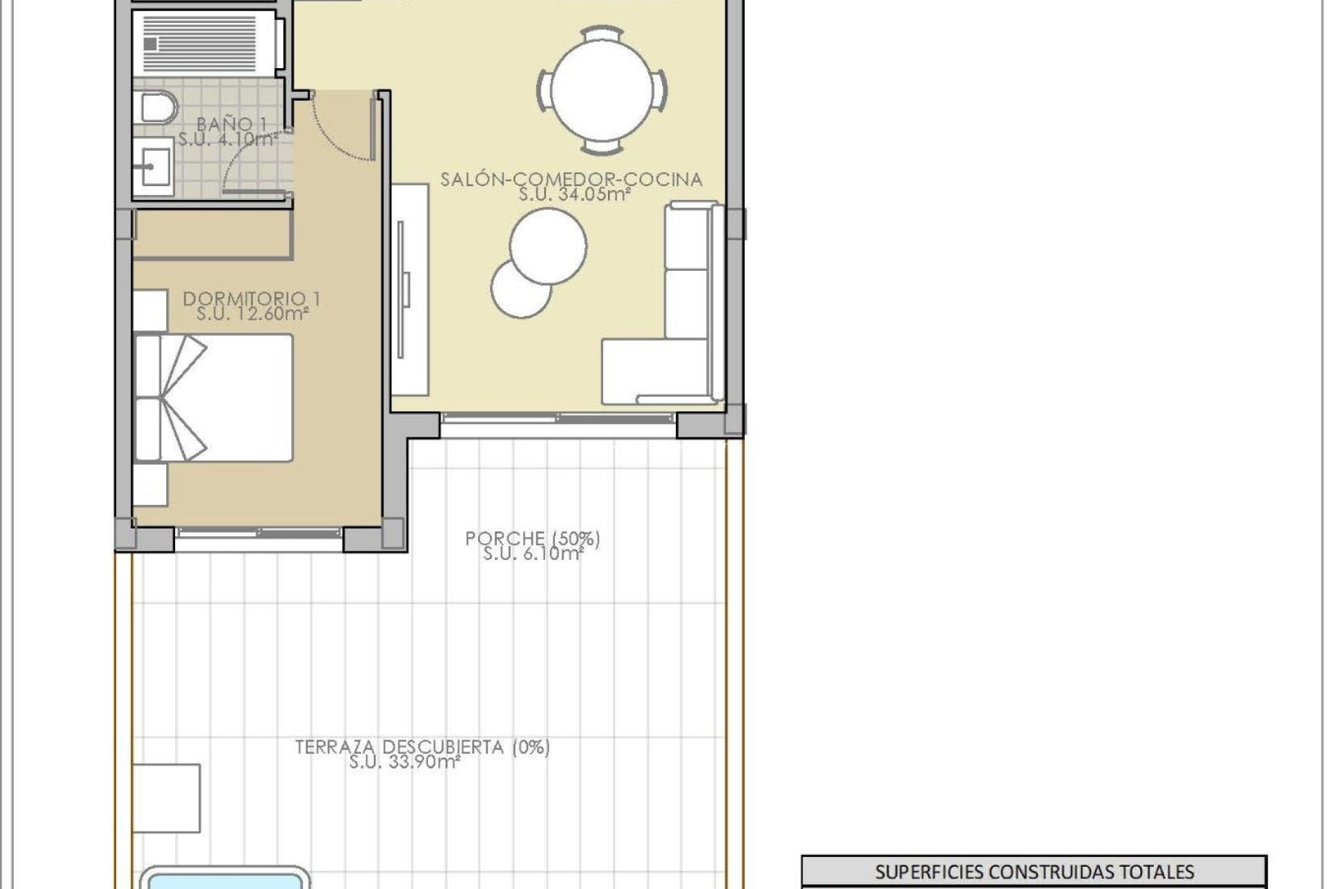
Het project biedt moderne appartementen met 2 slaapkamers en 2 badkamers, waaronder een hoofdslaapkamer met en suite badkamer. Kopers kunnen kiezen tussen woningen op de begane grond met ruime privéterrassen, perfect voor buitenleven, of woningen op de bovenste verdieping met een terras en een privésolarium, ideaal om te zonnebaden en te ontspannen. Sommige appartementen op de bovenste verdieping zijn bereikbaar met een lift, wat extra gemak en toegankelijkheid biedt.
Hoogwaardige afwerking en energie-efficiëntie
Alle woningen zijn gebouwd met hoogwaardige materialen en moderne specificaties. De badkamers zijn voorzien van vloerverwarming, inbouwkasten met spiegels en doucheschermen. De keukens zijn volledig ingericht en uitgerust met elektrische apparatuur, en hebben een modern en functioneel ontwerp. Er zijn gemotoriseerde rolluiken en er is een voorinstallatie voor airconditioning. Elke woning is ook voorzien van 1 kW fotovoltaïsche zonnepanelen, wat bijdraagt aan een betere energie-efficiëntie en lagere exploitatiekosten, en een voorinstallatie voor een privéjacuzzi.
Parkeren en gemeenschappelijk comfort
Elke woning beschikt over een eigen parkeerplaats in de ondergrondse garage, wat veiligheid en comfort biedt. Het ontwerp van de woningen is gericht op functionaliteit en modern wonen en biedt een rustige omgeving in een goed geplande nieuwe wijk van Rojales.
Levensstijl en omgeving van Rojales
Rojales is een traditioneel Spaans stadje dat bekend staat om zijn vriendelijke sfeer en uitstekende levenskwaliteit. Het biedt alle essentiële voorzieningen, evenals een nabijgelegen natuurpark dat ideaal is voor wandelingen en buitenactiviteiten. Het gebied is vooral populair bij golfliefhebbers, met de golfbaan La Marquesa op minder dan 2 km afstand en twee extra golfbanen op korte rijafstand. De blauwe vlag stranden van Guardamar del Segura liggen op slechts 7 km afstand en bieden lange zandstranden en een prachtige boulevard. Waterparken en recreatiefaciliteiten in Rojales en Torrevieja zijn ook vlakbij.
Afstanden tot belangrijke bezienswaardigheden
Golfbaan La Marquesa: 2 km
Stranden van Guardamar: 7 km
Torrevieja: 12 km
Luchthaven Alicante: 45 km
Luchthaven Murcia Corvera: 55 km
Uw nieuwe thuis aan de Costa Blanca
Deze nieuwbouwappartementen in Rojales bieden een uitstekende combinatie van locatie, kwaliteit en levensstijl. Neem vandaag nog contact met ons op voor meer informatie of om een bezichtiging te regelen en uw nieuwe thuis aan de Costa Blanca Zuid veilig te stellen.