Maisons de ville neuves à vendre à Cox - 44 maisons modernes avec de grandes commodités
Maisons de ville neuves à vendre à Cox - 44 maisons modernes avec de grandes commodités
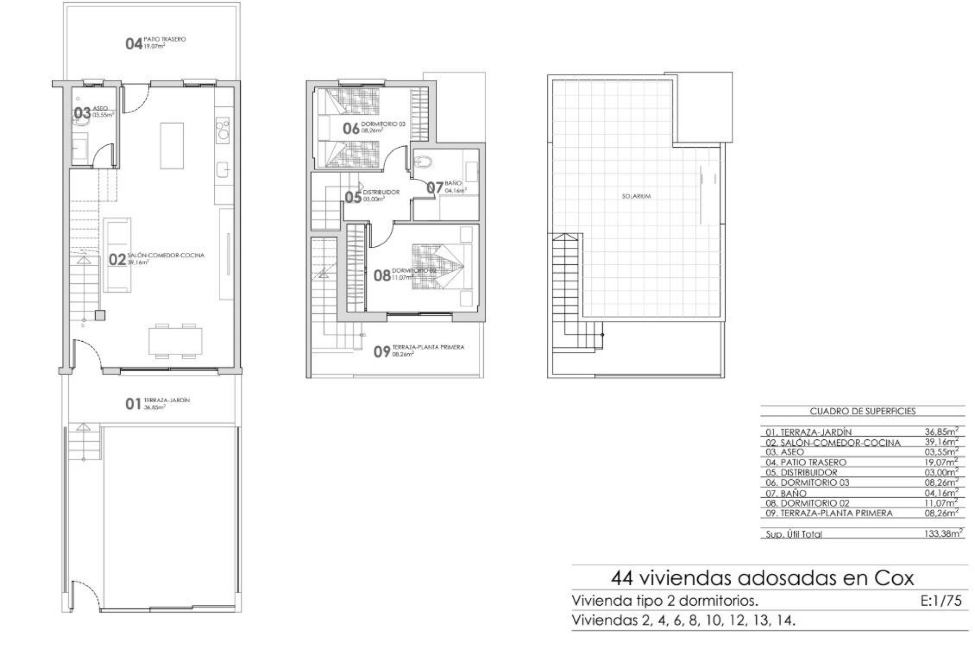
Découvrez un nouveau projet résidentiel de 44 maisons de ville modernes à Cox, Alicante. Ces maisons sont disponibles en 2 et 3 chambres, chacune disposant d'un solarium privé, de terrasses, de patios et d'un parking privé. La communauté offre un accès à des zones communes, y compris une piscine commune, créant un environnement idéal pour la détente.
Une situation privilégiée et une excellente connectivité
Ce projet est situé à seulement 40 km de l'aéroport international d'Alicante, ce qui facilite les déplacements. Cox est bien relié aux principales villes : Orihuela n'est qu'à 8 km, Elche à 20 km, Alicante à 48 km et Murcia à 25 km. Les amateurs de golf apprécieront les parcours à proximité, tels que La Finca (12 km) et Vistabella (14 km).
Accès facile aux grands axes routiers
Cox offre un accès facile à l'autoroute AP-7 et à l'Autovía del Mediterráneo (A-7), ainsi qu'aux routes locales menant aux régions environnantes telles que Granja de Rocamora et Callosa de Segura. La ville et ses environs comptent plus de 35 000 habitants et offrent un mode de vie à la fois paisible et dynamique.
Commodités et attractions locales
Les résidents bénéficieront d'un large éventail de commodités locales, notamment des magasins, des écoles, des installations sportives, des centres médicaux et un accès rapide aux plages de la Costa Blanca, telles que Guardamar del Segura et Torrevieja.
Caractéristiques incluses
Chaque maison est équipée d'un jardin paysager, d'un éclairage LED, de volets électriques, d'une pré-installation de panneaux solaires, d'armoires encastrées, d'une porte de sécurité, d'une cuisine entièrement équipée avec des comptoirs Silestone, et bien d'autres choses encore.