MAISONS NEUVES À POLOP
MAISONS NEUVES À POLOP
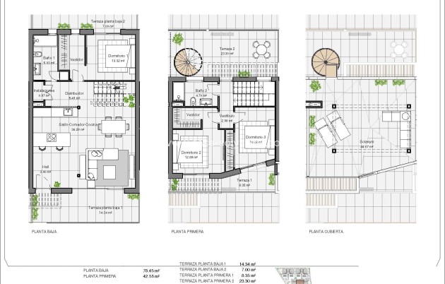
Nouvelle construction de maisons de ville modernes et de villas jumelées avec plusieurs terrasses et solarium, entièrement clôturées, avec parking pour véhicules et piscine privée à Polop.
Propriétés modernes avec 3 chambres spacieuses avec armoires encastrées (la principale au rez-de-chaussée, avec salle de bain et dressing en suite), 2 salles de bain spacieuses, grand salon-salle à manger avec cuisine ouverte, terrasses spacieuses.
Cuisine équipée d'éléments bas et de plans de travail en pierre, avec plaque vitrocéramique, four, hotte aspirante, réfrigérateur, lave-linge, lave-vaisselle et chauffage aérothermique.
Premières qualités : menuiserie intérieure en bois et stratifiés laqués blancs, menuiserie extérieure en pvc gris anthracite avec double vitrage et rupture de pont thermique, et stores automatiques à lamelles aluminium, sols céramiques de 1ère qualité antidérapants, murs lisses, porte blindée avec 5 points d'ancrage, grandes armoires encastrées.
La ville de Polop offre une gamme étonnante d'options pour les amateurs de grands espaces entourés de nature et d'une paix inégalée.
La municipalité jouit d'un climat méditerranéen avec des températures plus fraîches et un air plus pur. Elle est située à moins de 10 kilomètres de Benidorm, d'Altea et de leurs plages.
Elle s'étend des rivières Guadalest et Algar jusqu'à la ville de Villajoyosa, en passant par les plages d'Albir et de Benidorm ; à l'intérieur des terres, elle est bordée par Callosa et Guadalest.