Penthouse avec 3 chambres à Villamartin, Orihuela Costa.
Nous vous présentons ce fantastique penthouse situé dans Villamartin Gardens, un complexe résidentiel privé avec piscine commune. Son emplacement est idéal, dans une zone qui offre tout :
Commerces, supermarchés, à quelques minutes du centre commercial Zenia Boulevard et du golf de Villamartin.
Large choix de restaurants, bars, cafés, pharmacie à proximité.
Plages d’Orihuela Costa à seulement 5 minutes en voiture.
Caractéristiques principales
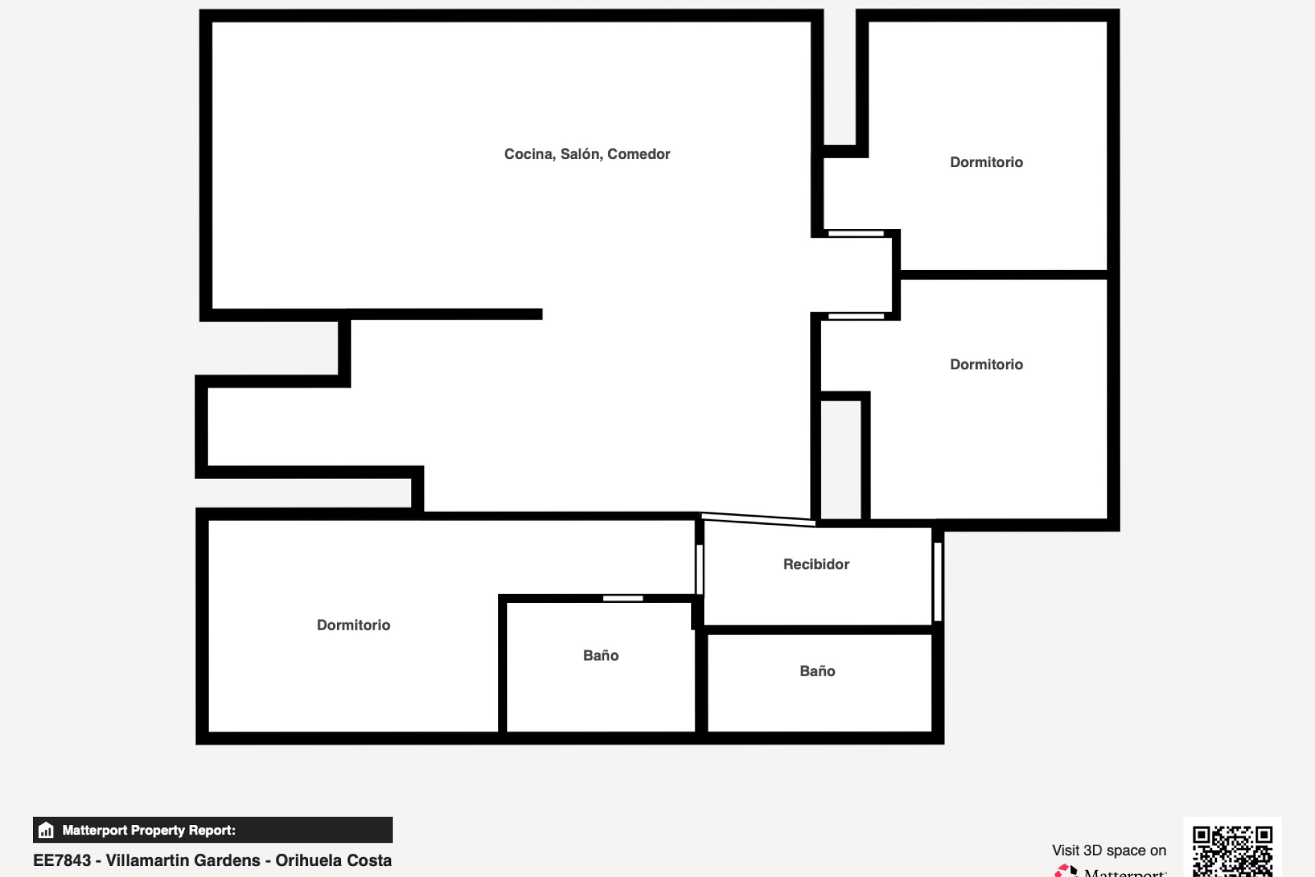
3 chambres et 2 salles de bains (dont une en suite)
Chauffage au sol dans les salles de bains
Grand salon-salle à manger
Cuisine avec bar américain
Buanderie
Terrasse de 22 m²
Orientation sud
Solarium privé de 85 m²
Parking souterrain
Débarras
2 piscines communautaires
La propriété est vendue meublée et avec des électroménagers de qualité. Elle comprend des finitions haut de gamme et a été utilisée comme résidence secondaire, donc en excellent état.
Coûts annuels :
IBI : 210 €
Charges de copropriété : 1200 €