Appartements et penthouses modernes avec solarium à San Javier, près de Mar Menor
Appartements et penthouses modernes avec solarium à San Javier, près de Mar Menor
Emplacement privilégié à San Javier, près de la plage
Ce nouveau complexe résidentiel de 16 logements modernes est situé dans la ville animée de San Javier, dans la région de Murcie, à seulement 3,5 km des eaux calmes de la Mar Menor. La région est réputée pour son ensoleillement tout au long de l'année, son style de vie côtier décontracté et ses excellents services. À quelques minutes à pied, vous trouverez des supermarchés, des restaurants, des installations sportives et toutes les commodités quotidiennes, ce qui en fait un endroit idéal pour vivre à l'année ou passer des vacances. La côte méditerranéenne n'est qu'à 10 minutes en voiture et offre une grande variété de plages et de promenades en bord de mer.
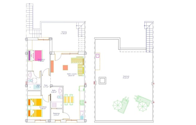
Choix entre des appartements au rez-de-chaussée avec jardin ou des appartements au dernier étage avec solarium privé
Les acheteurs peuvent choisir entre des appartements au rez-de-chaussée avec 3 chambres et 2 salles de bains, dont une en suite, avec une terrasse à l'avant et un jardin privé à l'arrière avec cuisine d'été. Les appartements au dernier étage offrent quant à eux 2 chambres et 2 salles de bains, dont une en suite, une terrasse à l'avant et un grand solarium privé avec cuisine d'été, parfait pour profiter du soleil toute l'année. Chaque agencement a été soigneusement conçu pour maximiser la vie en plein air et la lumière naturelle.
Espaces communs attrayants pour la détente
Le complexe résidentiel comprend un espace commun magnifiquement aménagé avec une piscine avec jacuzzi, un parking à vélos et des jardins verdoyants où les résidents peuvent se détendre et se retrouver dans un environnement paisible.
Des caractéristiques de qualité conçues pour un confort moderne
Chaque propriété est construite selon des normes élevées de confort et d'efficacité énergétique. Les menuiseries extérieures en PVC anthracite avec rupture de pont thermique et double vitrage offrent une excellente isolation et une protection solaire. Les cuisines sont entièrement équipées d'appareils électroménagers. Les maisons comprennent une préinstallation pour la climatisation canalisée et un système aérothermique pour l'eau chaude, garantissant une consommation d'énergie réduite. Les salles de bains sont livrées avec un meuble-lavabo, un miroir et une paroi de douche. Chaque propriété comprend également une place de parking attribuée.
Excellente connectivité et points d'intérêt à proximité
San Javier offre d'excellentes connexions routières et un accès facile aux principales destinations de la région.
Plages de Mar Menor 3,5 km
Plages méditerranéennes 10 km
Roda Golf et Mar Menor Golf à 8 km
Port de plaisance de Los Alcazares à 7 km
Aéroport de Murcie Corvera à 30 km
Aéroport d'Alicante à 75 km
Centre commercial Zenia Boulevard à 30 km
Profitez du style de vie méditerranéen à San Javier
Ce programme immobilier offre la combinaison parfaite entre emplacement, confort et vie en plein air à proximité de la mer et des terrains de golf. Contactez-nous dès aujourd'hui pour obtenir plus d'informations ou pour organiser une visite de votre future maison à San Javier.