NOUVEAU COMPLEXE A VILLAYOJOSA
Nouveau complexe résidentiel 42 d'appartements et de penthouses à Villayojosa situé à quelques pas de la plage.
Propriétés de luxe avec 1, 2 et 3 chambres à coucher conçues dans les moindres détails.
À seulement 200 mètres de la mer, avec des terrasses spacieuses sont parfaits pour se détendre et profiter de la vue sur la mer.
Située dans un environnement naturel, cette promotion dispose d'une piscine, de jardins, d'une aire pour enfants, d'une salle de sport équipée et d'un sauna.
Propriétés au rez-de-chaussée avec 1 chambre et 1 salle de bains avec terrasses et jardins privés.
Appartements avec 1 et 2 chambres à coucher et 1 et 2 salles de bains avec de grandes terrasses où il y a une zone couverte et une zone ouverte.
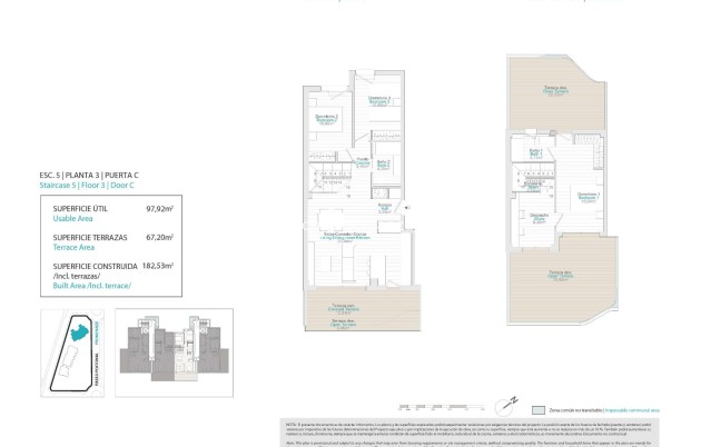
Penthouses avec 3 chambres et 2 salles de bains avec terrasses et solariums privés.
Toutes les propriétés disposent d'un parking privé.
Villajoyosa est une perle cachée de la Costa Blanca espagnole. Ce village de pêcheurs coloré est situé entre Benidorm et El Campello, à environ 30 minutes en voiture de l'aéroport d'Alicante.
Ces dernières années, cette ville idyllique est devenue un lieu recherché par les résidents de résidences secondaires et les touristes. Villajoyosa a beaucoup à offrir, de la grande plage de sable aux rues étroites et colorées du centre historique.
Aujourd'hui, plus de trente mille personnes vivent à Villajoyosa et, surtout, les maisons colorées sont une source d'inspiration pour les nombreux artistes.
Villajoyosa est également connue pour son délicieux musée de la chocolaterie Valor.