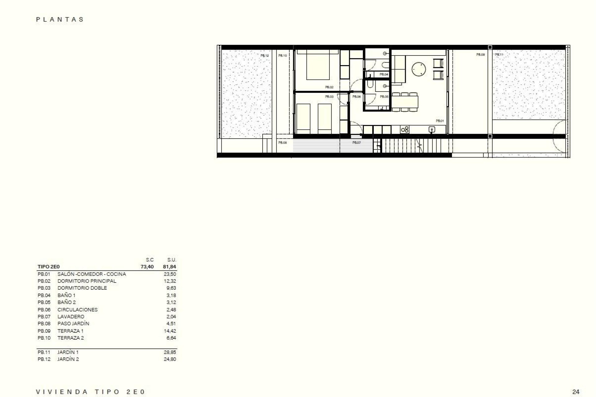
Bungalow. Nouvelle construction Torrevieja, Alicante

Réf. CSRS-69635

259.000€

Bungalow. Nouvelle construction Torrevieja, Alicante

Réf. CSRS-69635
Réf. CSRS-69635

259.000€

Bungalow. Nouvelle construction Torrevieja, Alicante

Réf. CSRS-69635
  • 81m2
  • 53m2
  • 2
  • 2
  • Oui

La description

Les caractéristiques

Emplacement

Contactez-nous.

Responsable du traitement: Casa Solyanza, Finalité du traitement: Gestion et contrôle des services proposés sur le site Web des Services immobiliers, Envoi d'informations via newsletter et autres, Base légale: Par consentement, Destinataires: Les données ne seront pas partagées, sauf à des fins comptables, Droits des personnes concernées: Accéder, rectifier et supprimer les données, demander leur portabilité, s’opposer au traitement et en demander la limitation, Source des données: La personne concernée, Informations supplémentaires: Vous pouvez consulter les informations supplémentaires et détaillées sur la protection des données Ici.
WhatsApp