Villa moderne avec 4 chambres et piscine privée au centre de Ciudad Quesada
Cette élégante villa moderne, orientée plein sud et construite en 2020 , est en excellent état. Elle offre un design raffiné, de vastes espaces de vie et un emplacement central très recherché à Ciudad Quesada . Alliant architecture contemporaine et confort optimal, elle est idéale pour les familles, comme résidence principale ou pour des vacances de luxe .
Caractéristiques principales
Villa individuelle moderne (construite en 2020) 4 chambres et 3 salles de bains modernes 153 m² de surface habitable sur un terrain privé de 533 m² Piscine privée d'eau salée en forme de L (environ 7 x 4 mètres) Des places de parking sécurisées, à l'écart de la voie publique, à l'entrée fermée. Cuisine ouverte équipée de matériel de haute qualité. Exposition plein sud, pour profiter du soleil toute la journée. Terrasse sur le toit avec vue panoramique buanderie et débarras Climatisation (refroidissement et chauffage) Chauffage au sol dans les salles de bains panneaux solaires Classe d'efficacité énergétique : B Des commerces, des cafés et autres commodités sont accessibles à pied (environ 300 m).
Description du bien
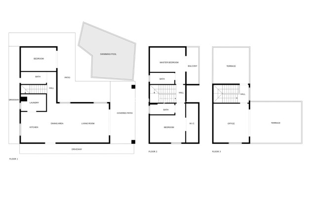
La villa s'étend sur trois étages et a été soigneusement conçue pour optimiser l'utilisation de la lumière naturelle, le confort et la fonctionnalité.
Le rez-de-chaussée offre un espace de vie lumineux et ouvert comprenant salon, salle à manger et cuisine, créant une atmosphère accueillante et spacieuse. De grandes fenêtres donnent sur la piscine privée et le jardin, reliant harmonieusement l'intérieur et l'extérieur. Une buanderie séparée apporte un confort supplémentaire, tandis qu'une élégante chambre d'amis et une salle de bains complètent ce niveau.
Au premier étage se trouvent deux chambres spacieuses, chacune avec sa propre salle de bains. L'une des chambres dispose d'un dressing, l'autre donne accès à un balcon privé surplombant le jardin et la piscine.
L' étage supérieur comprend une quatrième pièce polyvalente, idéale comme bureau, studio ou chambre d'amis supplémentaire. De là, deux vastes terrasses offrent une vue panoramique sur Ciudad Quesada, la campagne environnante, les marais salants et même un aperçu de la mer Méditerranée .
espaces extérieurs
Les espaces extérieurs sont conçus pour un entretien facile et une utilisation tout au long de l'année, offrant plusieurs terrasses pour les repas et la détente, un solarium et une piscine privée d'eau salée. La propriété, entièrement clôturée, dispose également d'un parking sécurisé à l'entrée.
Lieu et style de vie
Cette villa est située dans une impasse tranquille, à quelques minutes seulement du centre de Ciudad Quesada , bénéficiant ainsi d'un emplacement parmi les plus recherchés et les plus abordables du quartier. Commerces de proximité (supermarchés, cafés, restaurants, pharmacies, etc.) se trouvent à seulement 300 mètres .
Ciudad Quesada est une communauté dynamique et bien établie offrant une grande variété d'activités de loisirs, notamment le golf à La Marquesa , le bowling, le mini-golf, un parc aquatique, des pistes cyclables et des sentiers de randonnée pittoresques. La présence d'écoles internationales norvégiennes et britanniques de renom rend la région particulièrement attractive pour les familles.
Plages de Guardamar del Segura : environ 9 kilomètres (10 minutes) Aéroport d'Alicante : environ 38 km (35 minutes) Golf de La Marquesa : env. 4 kilomètres Commerces et autres services : environ 300 m
Grâce à son emplacement central et calme, cette propriété convient parfaitement comme résidence principale, comme résidence secondaire ou comme investissement locatif intéressant .
Plus de détails
Fenêtres à double vitrage pour une meilleure efficacité énergétique Piscine d'eau salée nécessitant peu d'entretien Plusieurs terrasses pour la détente et les loisirs. Solarium avec vue panoramique et vue partielle sur la mer Mobilier moderne et revêtements de sol de haute qualité. Une orientation plein sud garantit un maximum de lumière naturelle dans toute la maison.
Prochaines étapes
Contactez-nous pour organiser une visite privée de cette villa d'exception, en personne ou virtuellement. Nous pouvons également vous proposer une visite vidéo complète sur demande, vous permettant ainsi de découvrir la propriété où que vous soyez dans le monde.