Villas modernes neuves à Dolores, Alicante
Villas modernes neuves à Dolores, Alicante
Une vie contemporaine au cœur de la Vega Baja
Découvrez ce nouveau programme immobilier exclusif de villas neuves à Dolores, une charmante ville de la région de la Vega Baja del Segura, au sud d'Alicante. Réputée pour son caractère espagnol traditionnel et entourée d'une campagne luxuriante, Dolores offre un cadre de vie paisible tout en proposant toutes les commodités quotidiennes à quelques minutes à pied : commerces, restaurants, écoles et services locaux.
Situé à seulement 12 km des plages de La Marina et Guardamar del Segura, et avec un accès facile à l'autoroute AP-7, ce quartier résidentiel est parfaitement relié aux principales villes côtières de la Costa Blanca.
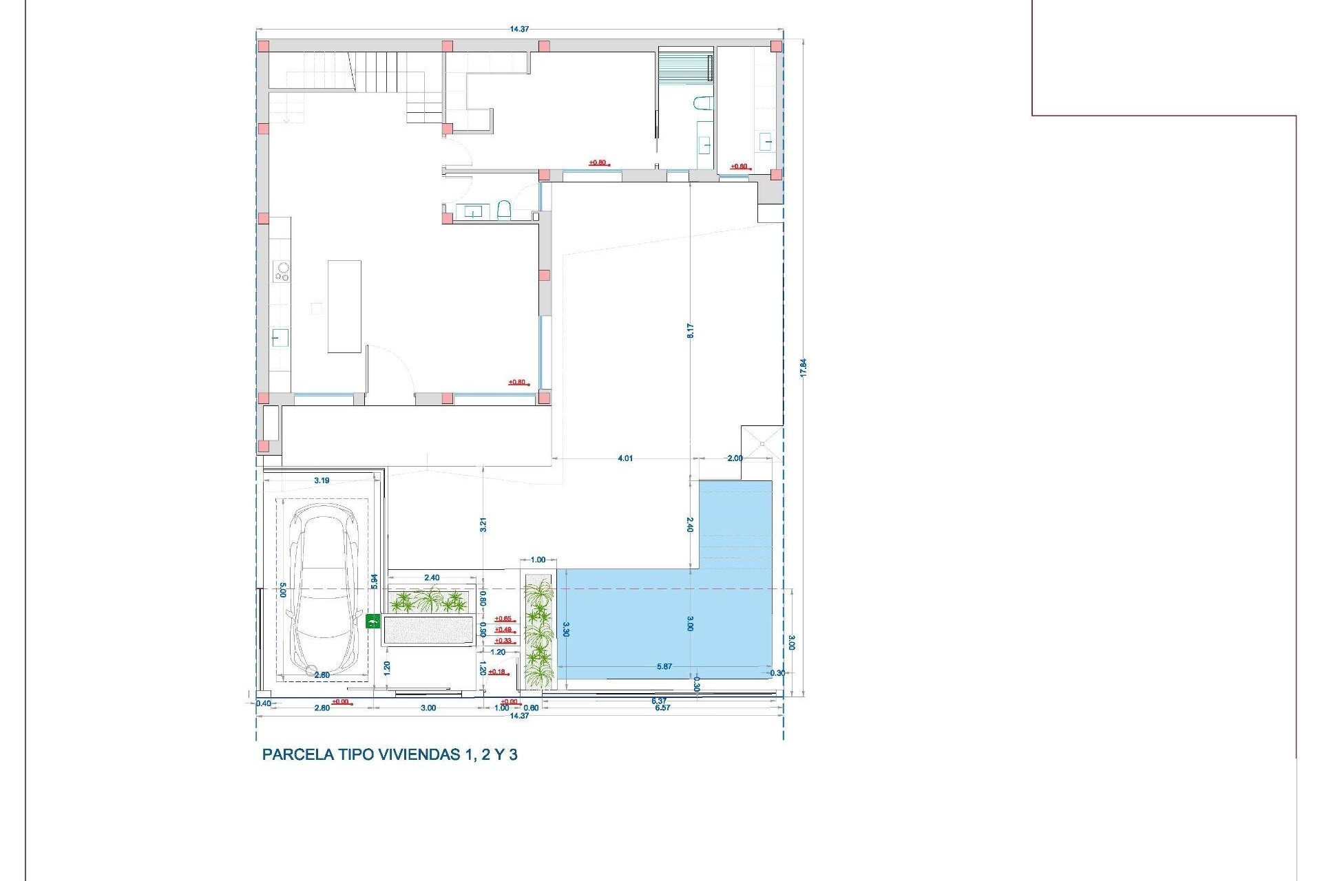
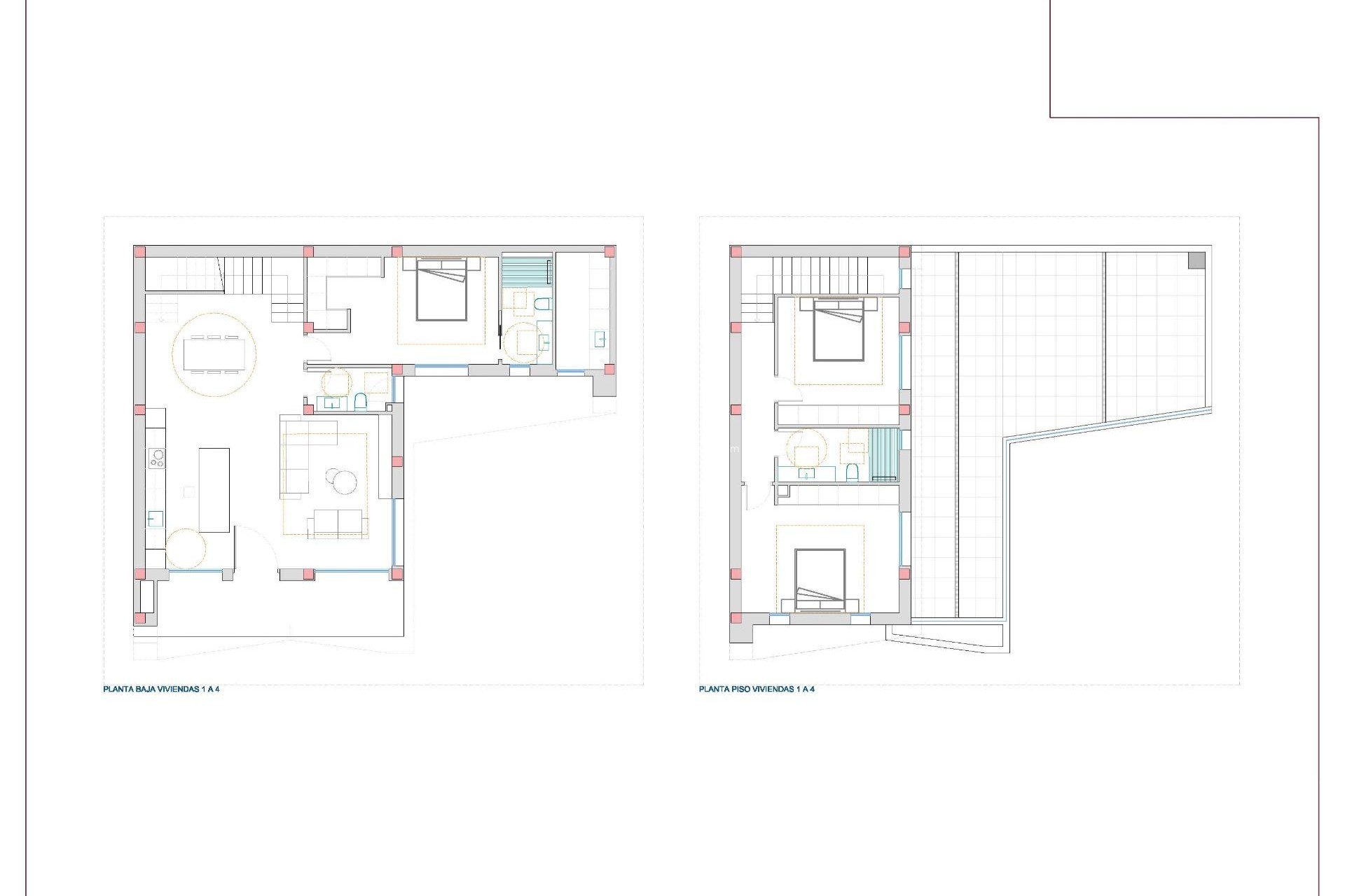
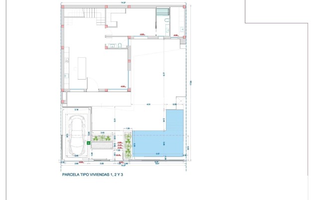
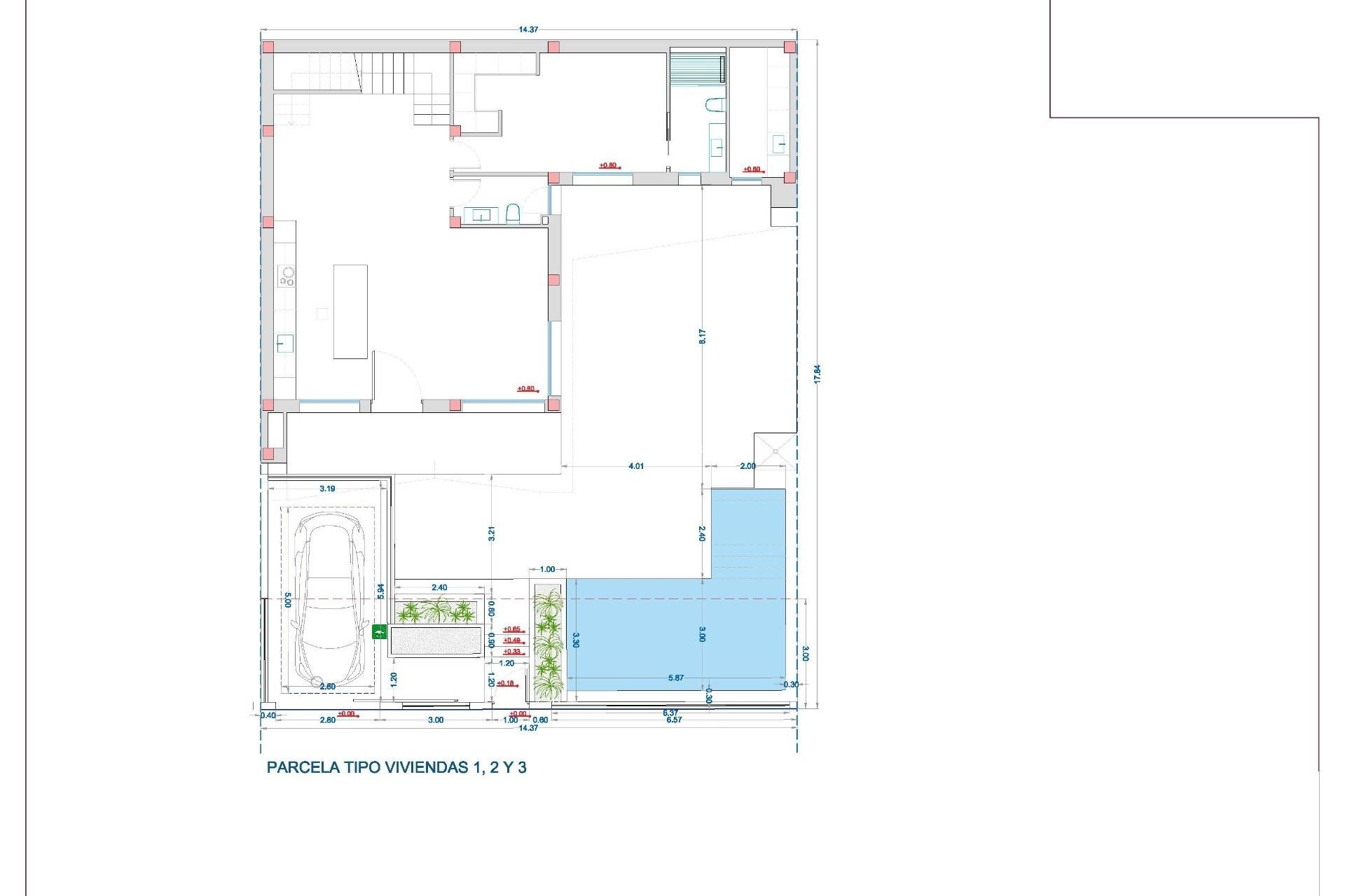
Élégantes villas modernes avec piscine privée
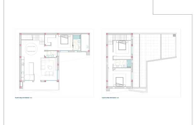
Ces villas modernes de deux étages ont été conçues pour offrir confort, fonctionnalité et style. Au rez-de-chaussée, vous trouverez une cuisine ouverte lumineuse reliée au salon-salle à manger, avec de grandes portes coulissantes s'ouvrant directement sur la terrasse et le jardin privé avec piscine. Le rez-de-chaussée comprend également une chambre avec salle de bains attenante, des toilettes pour invités et un espace buanderie extérieur pratique.
Au premier étage, vous trouverez deux chambres supplémentaires, une salle de bains et un accès à une grande terrasse ouverte de 60 m², parfaite pour prendre le soleil ou se détendre tout en profitant du climat méditerranéen. Chaque maison dispose d'un parking privé à l'intérieur du terrain.
Finitions de qualité et confort moderne
Construites avec des matériaux de haute qualité et un design contemporain, ces villas sont entièrement équipées pour être habitées toute l'année. Les principales caractéristiques sont les suivantes :
Menuiserie extérieure avec rupture de pont thermique
Stores motorisés
Système d'eau chaude alimenté par l'énergie aérothermique
Climatisation centralisée entièrement installée
Piscine privée
Parking privé et jardin paysager
Les intérieurs allient élégance et fonctionnalité, maximisant la lumière naturelle et offrant un cadre de vie exceptionnel avec une forte connexion entre les espaces intérieurs et extérieurs.
Emplacement privilégié à proximité de tout
Dolores bénéficie d'un emplacement stratégique, offrant un équilibre entre tranquillité et accessibilité.
Distances clés :
Plages de La Marina et Guardamar del Segura : 12 km
Aéroport d'Alicante (Elche-El Altet) : 30 km (25 minutes en voiture)
Aéroport de Murcie-Corvera : 70 km (1 heure en voiture)
Parcours de golf : 15 km
Ville d'Alicante : 40 km
Vivez le style de vie méditerranéen à Dolores
Ces villas neuves à Dolores offrent la combinaison parfaite entre design moderne, confort et proximité de la côte. Idéales pour une résidence permanente ou pour les vacances, elles offrent un style de vie méditerranéen serein, entouré par la nature et les commodités.
Contactez-nous dès aujourd'hui pour organiser une visite et faire de votre maison de rêve à Dolores une réalité.