Nouvelles villas jumelées en bord de mer à La Marina - Plage d'El Pinet
Nouvelles villas jumelées en bord de mer à La Marina - Plage d'El Pinet
Une vie méditerranéenne exclusive près de la plage
Ce nouveau complexe résidentiel de villas jumelées à La Marina, à seulement 500 mètres de la plage d'El Pinet, offre une combinaison imbattable de design moderne et d'environnement naturel privilégié. Situé à côté du parc naturel de Las Salinas, les résidents peuvent profiter de plages de sable doré, d'eaux cristallines, de dunes protégées et d'une forêt de pins centenaire - l'endroit idéal pour vivre toute l'année ou pour passer des vacances.
Villas méditerranéennes modernes conçues pour le confort
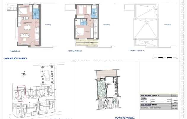
Les villas sont réparties sur deux étages et comprennent :
3 chambres spacieuses et 3 salles de bains
Rez-de-chaussée avec cuisine ouverte et salon, une chambre, une salle de bains et accès au jardin privé avec place de parking
Premier étage avec deux chambres, toutes deux avec salle de bains attenante, et une grande terrasse reliée à la chambre principale
Chaque maison a été conçue avec des intérieurs lumineux et confortables et des finitions de haute qualité, créant une atmosphère unique et accueillante.
Entièrement équipées avec des caractéristiques haut de gamme
Ces villas sont livrées avec :
Cuisine entièrement équipée avec plaque à induction, hotte aspirante, four, réfrigérateur et pré-installation pour lave-vaisselle
Armoires modernes avec finitions haut de gamme
Climatisation centrale entièrement installée
Volets électriques
Piscine communautaire entourée de jardins paysagers
Un emplacement privilégié sur la Costa Blanca
Vivre à La Marina, c'est profiter de toutes les commodités d'une ville bien desservie tout en étant entouré par la nature et la mer Méditerranée. À quelques minutes à pied, vous trouverez des magasins, des restaurants et tous les services essentiels.
Distances vers les principaux points d'intérêt :
Plage d'El Pinet : 500 m
Ville d'Elche : 17 km
Aéroport international d'Alicante-Elche : 22 km
Parcours de golf (La Marquesa, El Plantío) : 15-20 km
Ville et port d'Alicante : 30 km
Le style de vie côtier idéal
Que vous recherchiez une résidence permanente, une résidence secondaire ou un investissement intelligent, ces villas à El Pinet offrent un style de vie marqué par la mer, la nature et le confort moderne. Avec un ensoleillement toute l'année et un emplacement privilégié, La Marina est l'un des endroits les plus prisés de la Costa Blanca.
Contactez-nous dès aujourd'hui pour organiser une visite et acquérir la villa de vos rêves au bord de la Méditerranée.