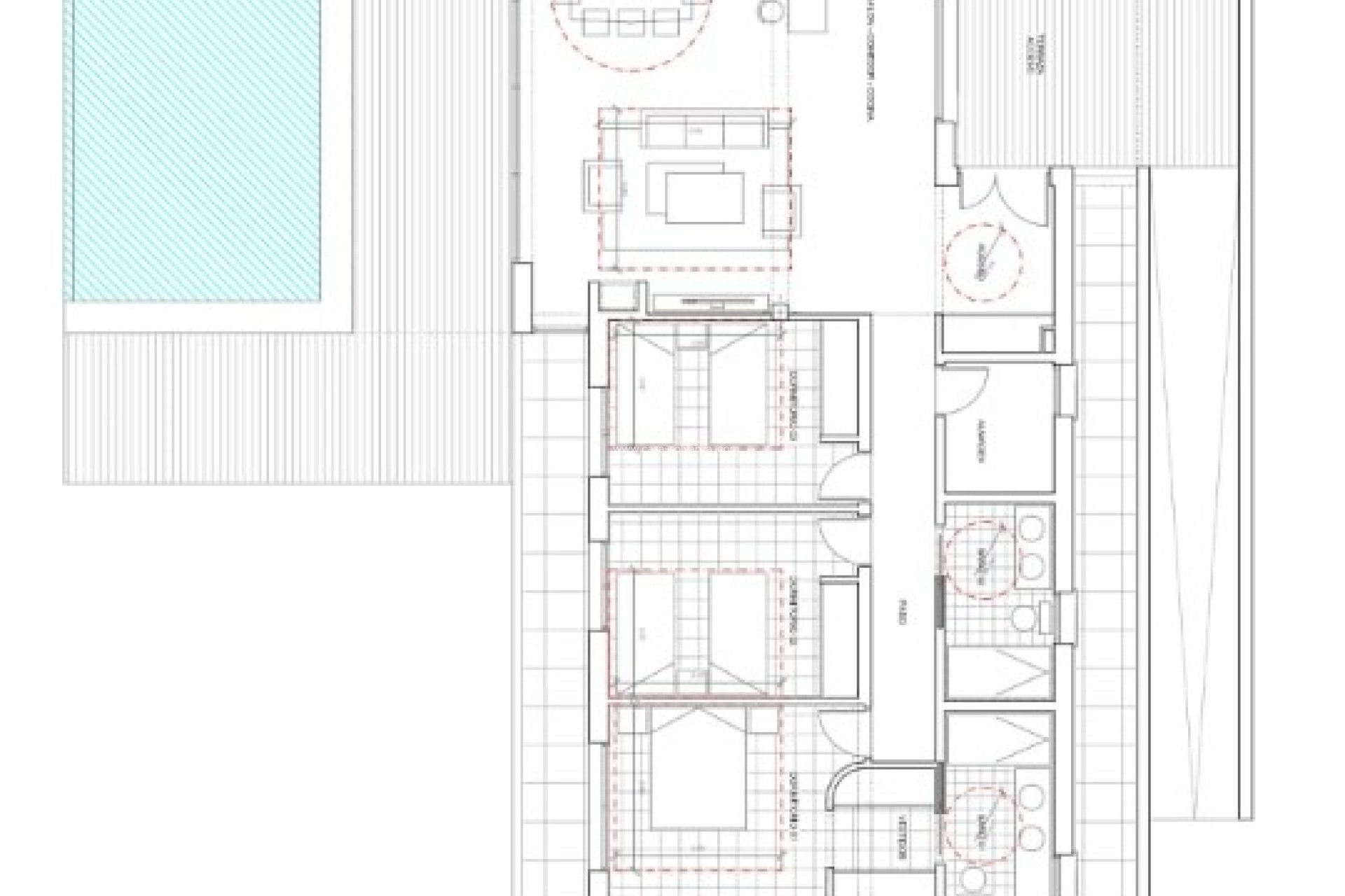
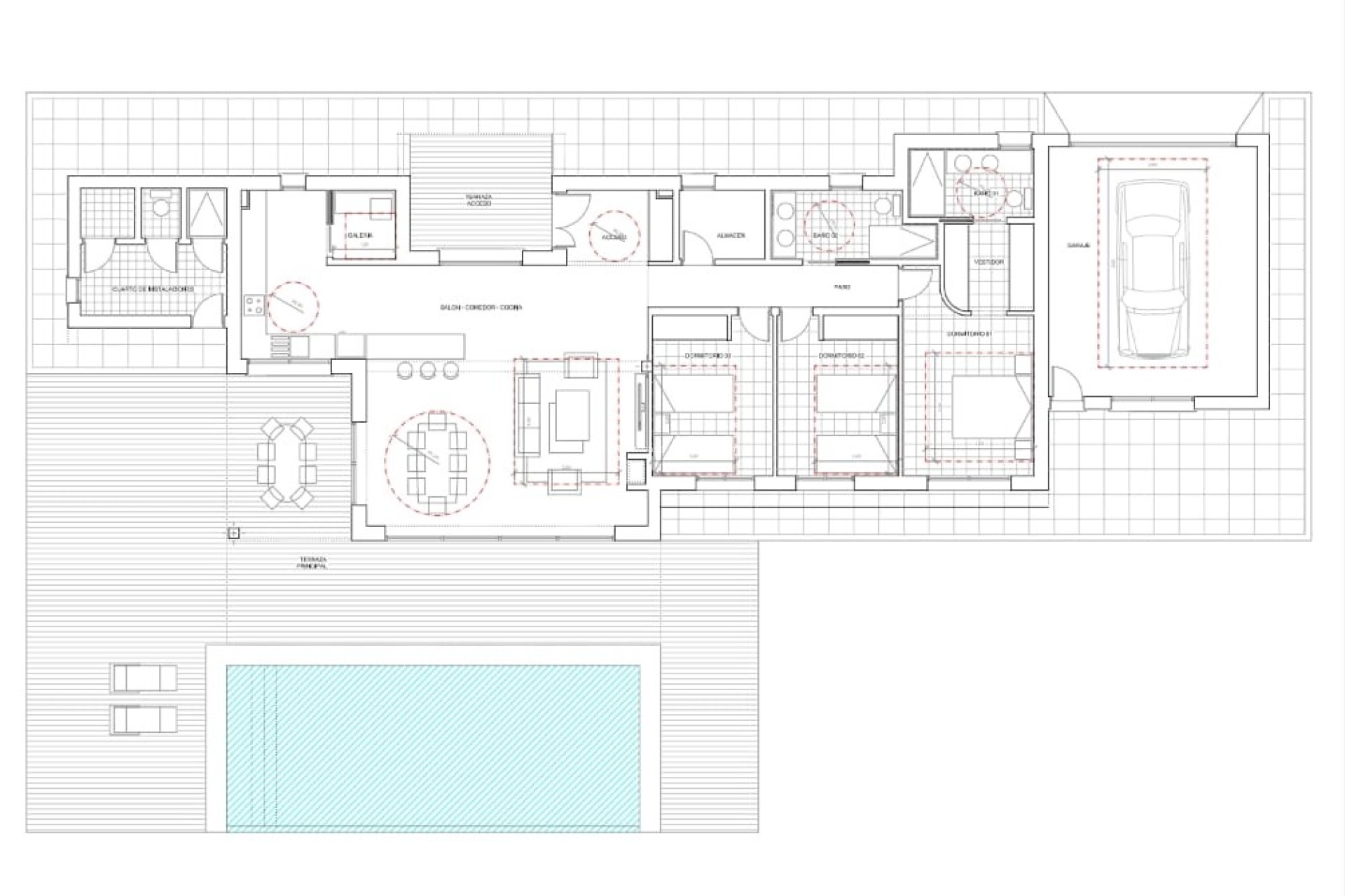
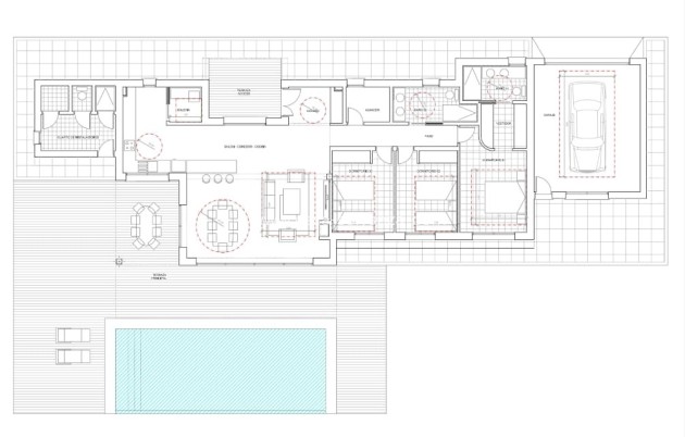
Esta villa sobre plano ofrece un diseño moderno con una superficie construida de 170 m², dos dormitorios, dos baños y una luminosa cocina abierta con salón. La distribución es funcional y está diseñada para una vida cómoda durante todo el año. El precio incluye una piscina infinita privada y un garaje, así como una sala de piscina con ducha, inodoro, lavabo y espacio para la bomba de la piscina, entre otros. La casa se puede personalizar según sus necesidades. La villa se construirá en una parcela de 10.000 m², que no está incluida en el precio base. Ofrecemos una amplia selección de más de 150 parcelas legales en diversas zonas rurales. Los precios de las parcelas y el coste final pueden variar según la ubicación y las características elegidas. Este tipo de obra nueva es ideal para quienes buscan espacio, privacidad y flexibilidad, a la vez que se encuentran cerca de pueblos como Pinoso, La Romana o Monóvar. Estas zonas son conocidas por sus paisajes, viñedos y su encanto tradicional español, a la vez que se mantienen cerca de la costa y del aeropuerto de Alicante. Perfectas para vivir a tiempo completo o como refugio vacacional. Disponemos de una amplia cartera de propiedades en la Costa Blanca y la Costa Cálida, especializándonos en fincas rústicas, villas, fincas, terrenos edificables y opciones de diseño y construcción en las regiones de Alicante y Murcia, con especial énfasis en Elda, Monóvar, Pinoso, Sax, Villena, Aspe, Fortuna, Albacete y muchas otras zonas de los alrededores. Llevamos establecidos desde 2004 y nuestro equipo cuenta con décadas de experiencia para ayudarle a encontrar y asegurar la casa de sus sueños. Le acompañamos en cada paso del proceso para garantizar que su compra en España sea segura y sin complicaciones. No estamos aquí para venderle una propiedad, sino para ayudarle a hacer realidad su sueño y encontrar la propiedad perfecta para usted. Con nosotros, está en las mejores manos. Contáctenos ahora para hablar sin compromiso sobre cómo usted también puede hacer realidad sus sueños.