Villa. Obra nueva Torrevieja, Alicante

Ref. CSRS-32201

750.000€

Villa. Obra nueva Torrevieja, Alicante

Ref. CSRS-32201
Ref. CSRS-32201

750.000€

Villa. Obra nueva Torrevieja, Alicante

Ref. CSRS-32201
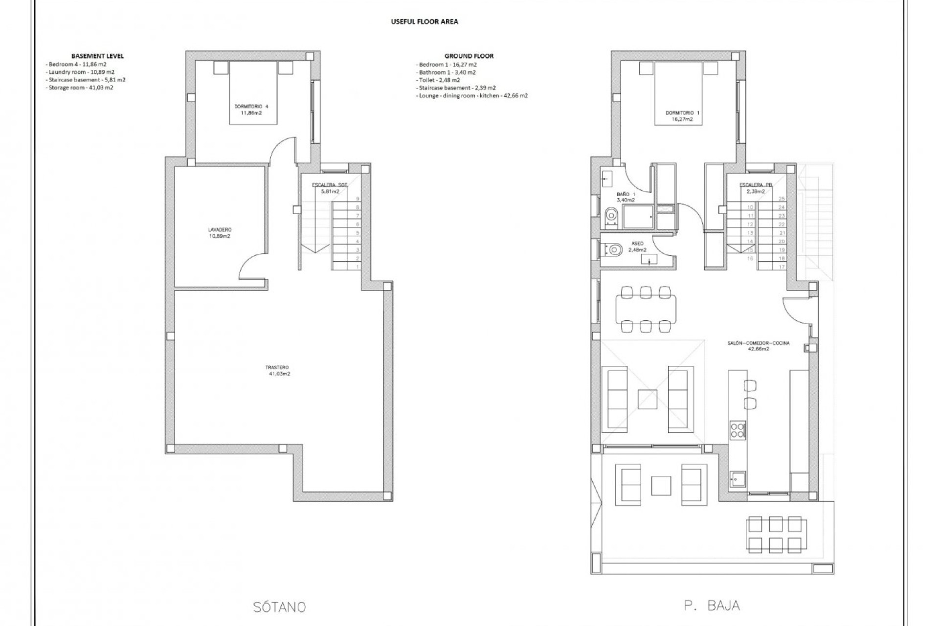
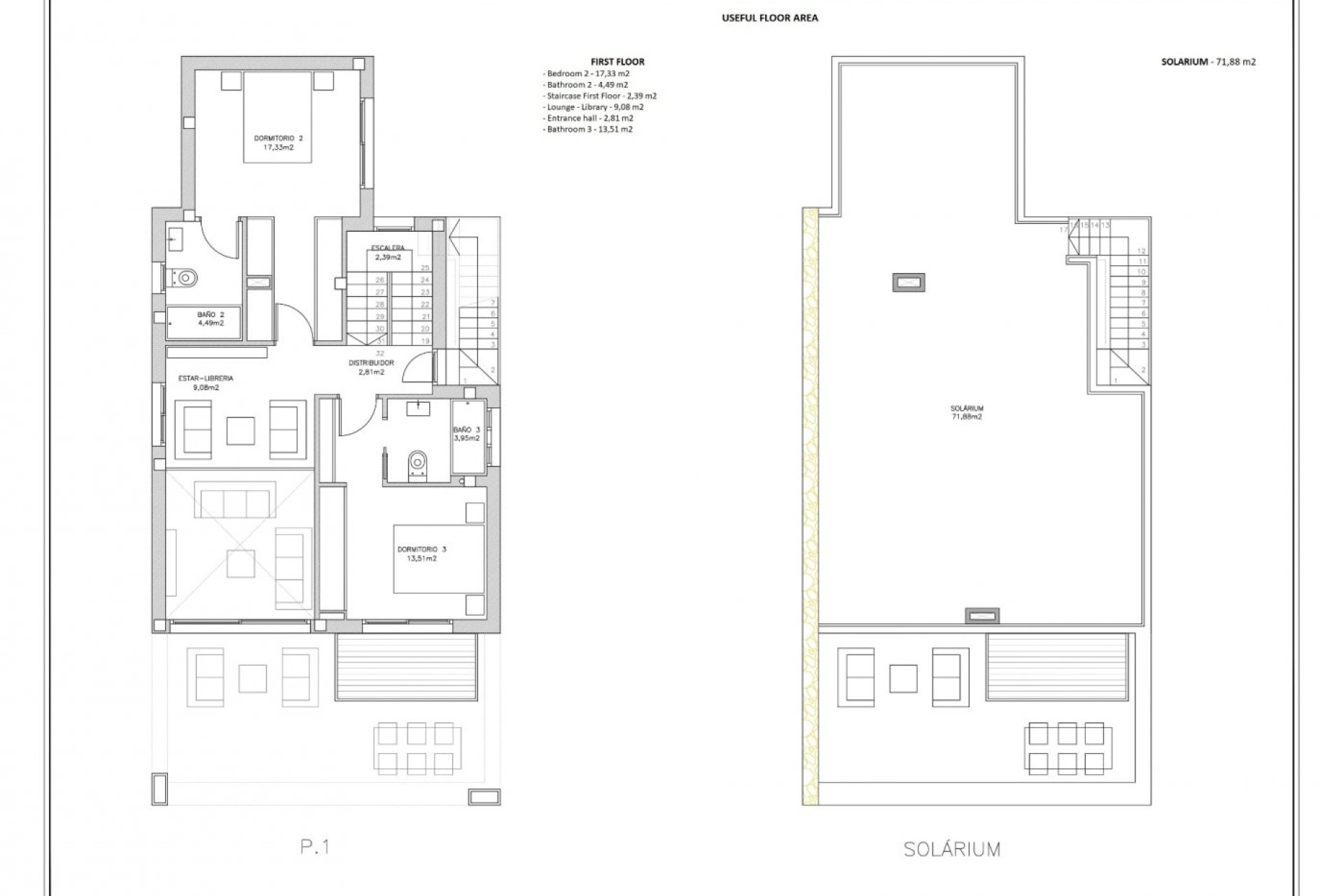
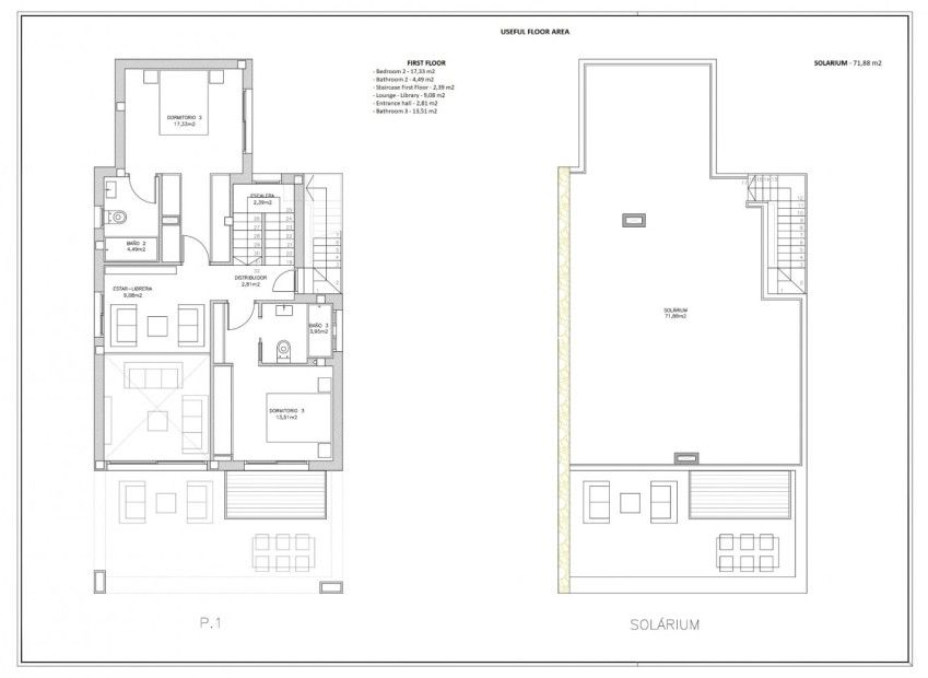
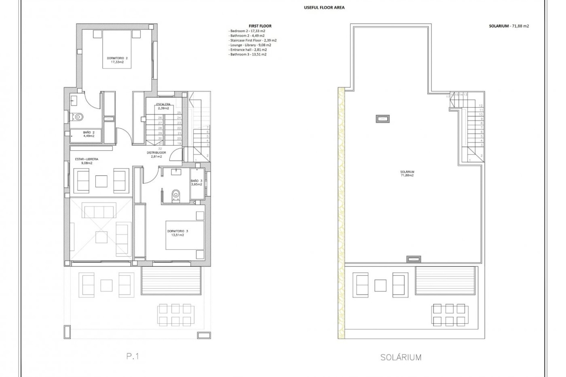
  • 238m2
  • 420m2
  • 4
  • 4

Descripción

Características

Localización

Contáctenos.

Responsable del tratamiento: Casa Solyanza, Finalidad del tratamiento: Gestión y control de los servicios ofrecidos a través de la página Web de Servicios inmobiliarios, Envío de información a traves de newsletter y otros, Legitimación: Por consentimiento, Destinatarios: No se cederan los datos, salvo para elaborar contabilidad, Derechos de las personas interesadas: Acceder, rectificar y suprimir los datos, solicitar la portabilidad de los mismos, oponerse altratamiento y solicitar la limitación de éste, Procedencia de los datos: El Propio interesado, Información Adicional: Puede consultarse la información adicional y detallada sobre protección de datos Aquí.
WhatsApp