NEU GEBAUTE VILLEN IN MAR DE CRISTAL
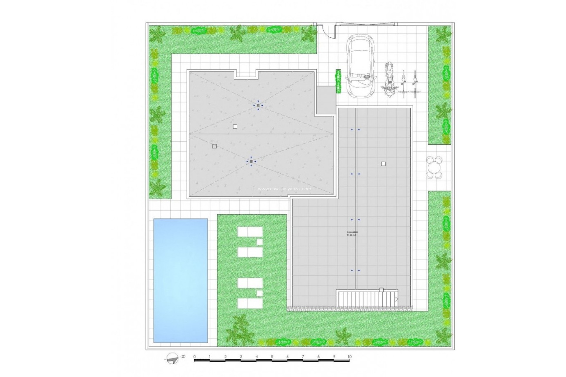
New Build eine Ebene Villa mit 3 Schlafzimmern, 2 Bädern und privater Sonnenterrasse auf 500 Meter von den Stränden Mar De Cristal.
Villen hat moderne offene Küche mit dem Wohnzimmer, wo hohe Schiebefenster hat Zugang zum Garten mit privatem Pool und Parkplatz.
Mar De Cristal ist eine Küstenstadt in der Mitte der schönen Natur und Naturparks, von denen Sie Foto's hinzugefügt finden.
Dies ist einer der schönsten Orte in Spanien und der ganzen Welt.
In Mar De Cristal finden Sie einige nette Restaurants und einen Supermarkt. Die netten Restaurants von Los Belones sind nur 2 km entfernt, die 36 km langen Strände von La Manga sind in 5 Minuten mit dem Auto zu erreichen. Das magische Cabo De Palos und Portman sind nur 5 Minuten entfernt.
Das große Einkaufszentrum von Cartagena ist weniger als 10 Autominuten entfernt.
Der Flughafen Murcia Corvera ist 30 Minuten entfernt, der Flughafen Alicante 55 Minuten.