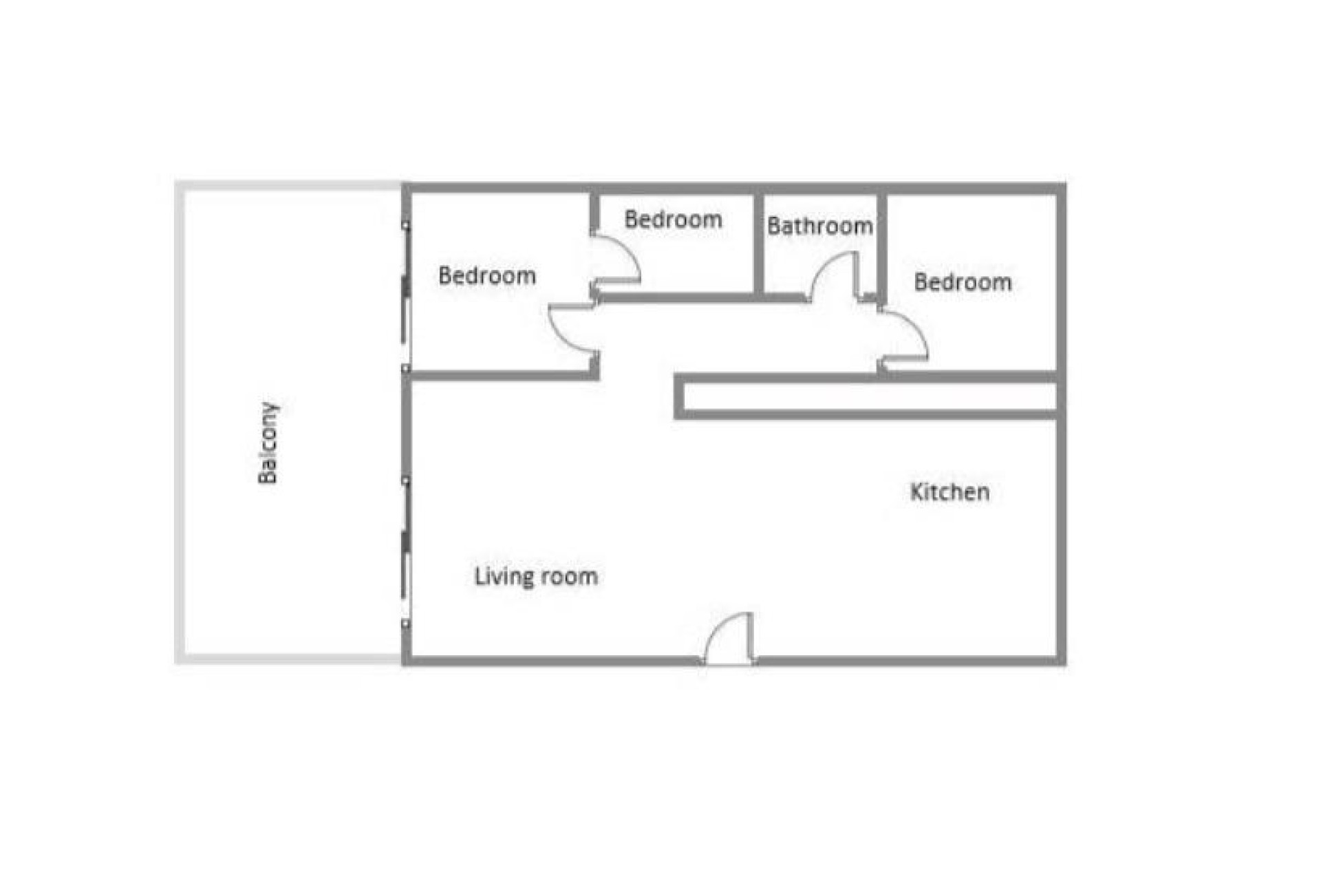
Helles und modernes 2-Schlafzimmer-Apartment in Las Colinas Golf Treten Sie ein in dieses helle und moderne Apartment, in dem Komfort, Stil und Licht perfekt zusammenkommen. Die offene Küche und das Wohnzimmer schaffen einen einladenden Raum zum Kochen, Entspannen oder für gemeinsame Zeit mit Familie und Freunden, mit viel Tageslicht. Vom Wohnzimmer aus gelangen Sie direkt auf den sonnigen Balkon, ideal für Kaffee am Morgen, Drinks am Abend oder einen ruhigen Moment mit einem Buch. Das Hauptschlafzimmer verfügt über ein eigenes Bad und direkten Zugang zum Balkon, was einen friedlichen Rückzugsort am Ende des Tages bietet. Das zweite Schlafzimmer ist vielseitig nutzbar, z. B. als Gästezimmer, Büro oder zusätzlicher Raum für Familie und Freunde. Zusätzliche Annehmlichkeiten sind eine private Garage, ein Abstellraum und Zugang zu einem gepflegten Gemeinschaftspool, ideal zum Abkühlen an warmen Tagen oder um die spanische Sonne zu genießen. Gelegen in einer ruhigen Umgebung, aber dennoch nahe Restaurants, Cafés, Supermärkten und schönen Stränden, bietet dieses Apartment die perfekte Balance zwischen entspanntem Wohnen und praktischer Lage.