Im Herzen der Costa Blanca, wo das intensive Blau des Himmels mit dem Mittelmeer verschmilzt, finden Sie diese exklusive Reihe von Häusern, die für diejenigen konzipiert wurden, die einen unvergleichlichen Lebensstil suchen. Jedes Haus ist ein Meisterwerk des Designs und des Komforts und bietet helle Räume, erstklassige Oberflächen und viel Liebe zum Detail. In jedem Haus verschmelzen die Terrassen und Außenbereiche zu einem perfekten Rahmen, um unvergessliche Momente zu erleben. Entwickelt, um den Eintritt von natürlichem Licht zu maximieren und eine optimale Belüftung zu gewährleisten. Die Terrassen werden zu einer Erweiterung mit Privatsphäre, die zum Ausruhen und Abschalten einlädt.
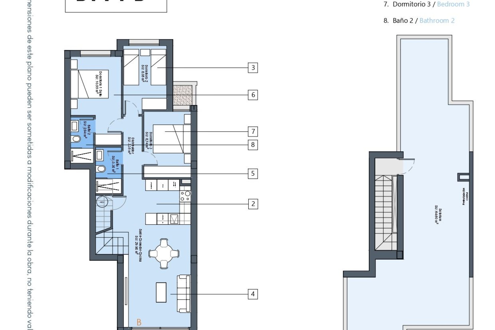
Bungalow im ersten Stock von 90,80m², verteilt auf drei Doppelzimmer, eines davon en suite mit eigenem Bad , und ein separates Badezimmer , großes Wohnzimmer mit Zugang zu einer schönen Terrasse von ca. 13,75m² und einer schönen amerikanischen Küche. Das Haus verfügt auch über eine schöne Sonnenterrasse von 66,70 m², wo Sie die sonnigen Tage des Mittelmeers genießen können.
Das Anwesen verfügt über eine Garage und einen Abstellraum.