Neubauvilla im Ibiza-Stil mit luxuriöser Ausstattung in Javea
Neubauvilla im Ibiza-Stil mit luxuriöser Ausstattung in Javea
Exklusives mediterranes Design in der Nähe des Strandes El Arenal
Diese atemberaubende Neubauvilla im Ibiza-Stil in Javea liegt nur 3 km vom berühmten Strand El Arenal entfernt, einer der lebhaftesten und attraktivsten Gegenden der Costa Blanca Nord. Die Immobilie befindet sich in einer ruhigen und gut angebundenen Wohngegend und bietet eine außergewöhnliche Kombination aus Eleganz, Komfort und moderner mediterraner Architektur. Javea ist bekannt für sein kristallklares Wasser, malerische Buchten, Naturparks, Yachthäfen und ausgezeichnete Restaurants, was es zu einem begehrten Ziel sowohl zum Wohnen als auch zum Investieren macht.
Elegante Innenausstattung auf zwei Ebenen
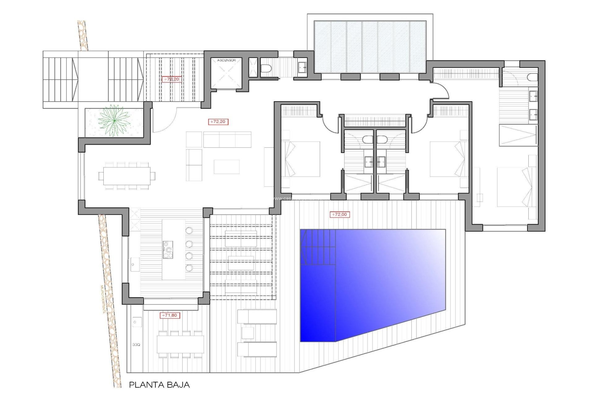
Die Villa wurde sorgfältig entworfen, um Komfort und Stil zu maximieren. Im Erdgeschoss verbindet sich ein geräumiges Wohn- und Esszimmer nahtlos mit einer voll ausgestatteten Küche und schafft so einen hellen und einladenden offenen Raum. Auf dieser Ebene befinden sich außerdem ein Aufzug für zusätzlichen Komfort, eine Gästetoilette und ein zentraler Flur, der alle Bereiche miteinander verbindet.
Es gibt zwei Doppelzimmer mit eigenem Bad sowie ein beeindruckendes Hauptschlafzimmer mit großzügigem Grundriss, eigenem Bad und integriertem begehbarem Kleiderschrank.
Outdoor-Wohnen für den mediterranen Lebensstil
Die Außenbereiche wurden so gestaltet, dass man das ganze Jahr über das warme Klima von Javea genießen kann. Das Anwesen verfügt über zwei elegante Pergolen, eine am Eingang und eine weitere, die sich vom Wohnbereich und der Küche bis zur offenen Terrasse erstreckt, die den 38 m² großen privaten Pool umgibt.
Neben der Küche bietet eine zusätzliche Terrasse mit Grillbereich den perfekten Rahmen für Mahlzeiten im Freien und gesellige Zusammenkünfte.
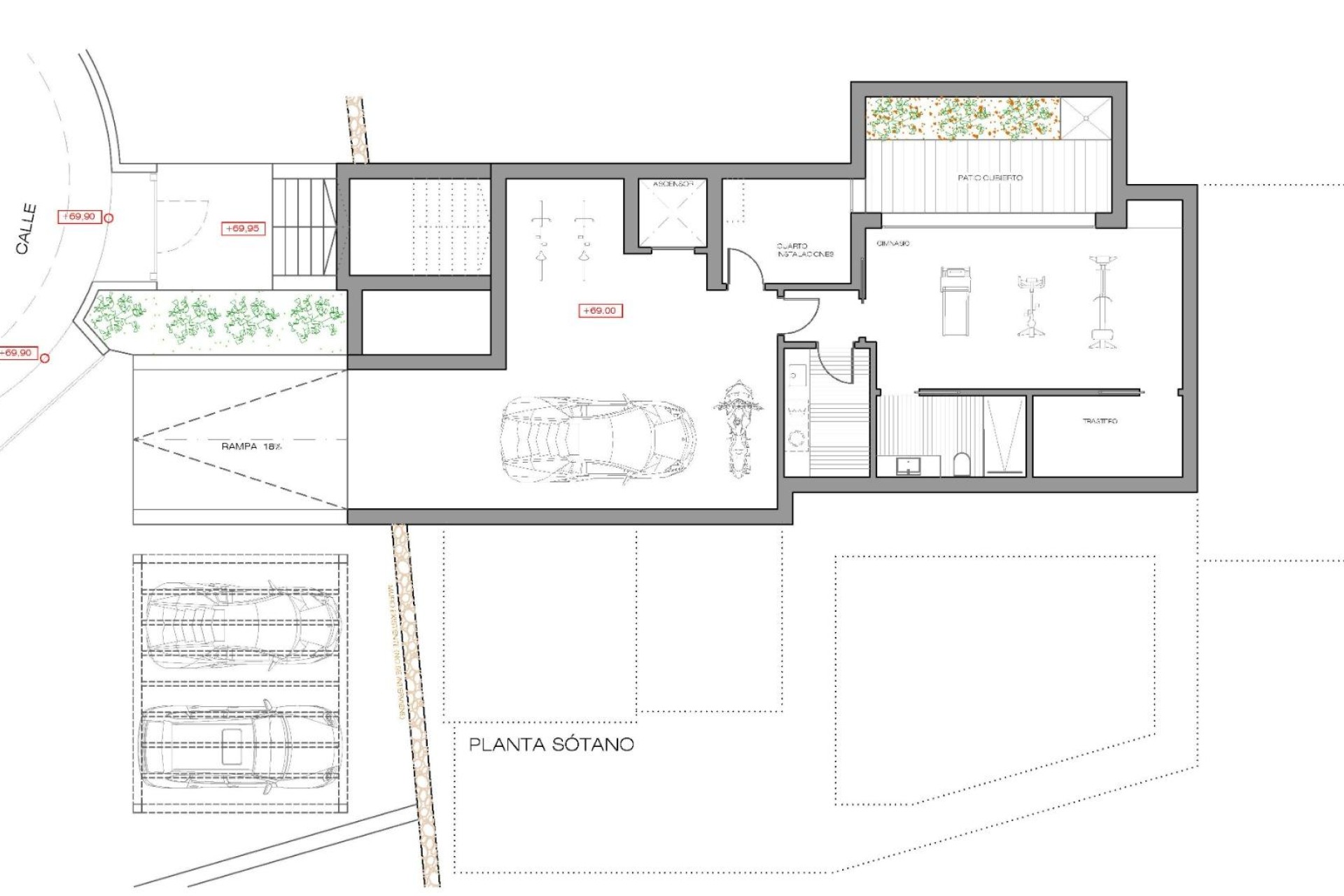
Hochwertiger Keller mit außergewöhnlichen Annehmlichkeiten
Das Untergeschoss vereint Funktionalität und Luxus und verfügt über eine offene Garage, einen Aufzug, einen Hauswirtschaftsraum, eine Waschküche, einen Fitnessraum, eine überdachte Terrasse, ein Badezimmer und einen geräumigen Abstellraum. Diese Etage wurde so gestaltet, dass sie sich den modernen Wohnbedürfnissen anpasst und gleichzeitig maximalen Komfort bietet.
Erstklassige Lage in Javea
Javea bietet eine einzigartige Mischung aus natürlicher Schönheit, Freizeitmöglichkeiten und hochwertigen Dienstleistungen.
Wichtige Entfernungen von der Villa:
Strand El Arenal 3 km
Hafen und Yachthafen von Javea 7 km
Golfclub Javea 3 km
Flughafen Alicante 100 km
Flughafen Valencia 125 km
Ihr mediterranes Zuhause wartet auf Sie
Ob Sie einen dauerhaften Wohnsitz, ein luxuriöses Ferienhaus oder eine erstklassige Investitionsmöglichkeit suchen, diese Villa bietet herausragende Qualität und eine unschlagbare Lage. Kontaktieren Sie uns noch heute, um einen Besichtigungstermin zu vereinbaren und Ihr neues Zuhause in Javea zu entdecken.