SCHLÜSSELFERTIGE HALB-FREISTEHENDE VILLA IN FUENTE ALAMO, MURCIA
SCHLÜSSELFERTIGE HALB-FREISTEHENDE VILLA IN FUENTE ALAMO, MURCIA
Wohnanlage mit Reihenhäusern, freistehenden Villen und Doppelhaushälften in Fuente Álamo, Murcia.
Es gibt sieben verschiedene Modelle von Häusern zur Auswahl, die für jeden Geschmack geeignet sind.
Rustikales Design, kombiniert mit hochwertigen Materialien und einem Schwerpunkt auf komfortablem Wohnraum, bietet für jeden etwas.
Die Bewohner dieser privaten Wohnanlage mit schönen, geräumigen Häusern können auch ihre eigenen Gemeinschaftsgärten und Swimmingpools genießen.
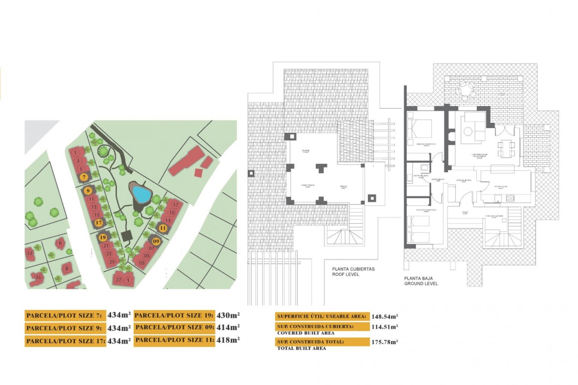
Diese ungewöhnlich gestaltete Doppelhaushälfte verfügt über 2 Schlafzimmer und 1 Badezimmer, eine separate Küche, ein Wohnzimmer mit Terrassentüren, die auf die überdachte Veranda und die halb überdachte Dachterrasse führen.
Ein privater Pool ist gegen Aufpreis möglich.
Fuente Álamo de Murcia ist eine Stadt und Gemeinde in der Region Murcia, Südspanien. Sie befindet sich 22 km nordwestlich von Cartagena und 35 km südwestlich von Murcia.
Die Stadt liegt im Becken des Mar Menor, umgeben von den Bergen Algarrobo, Los Gómez, Los Victorias und dem Carrascoy.
Das Wasser aus diesen Bergen fließt in die Rambla de Fuente Álamo und von dort in das Mar Menor.
Fuente Álamo liegt 30 Minuten vom Flughafen Murcia - Corvera entfernt.